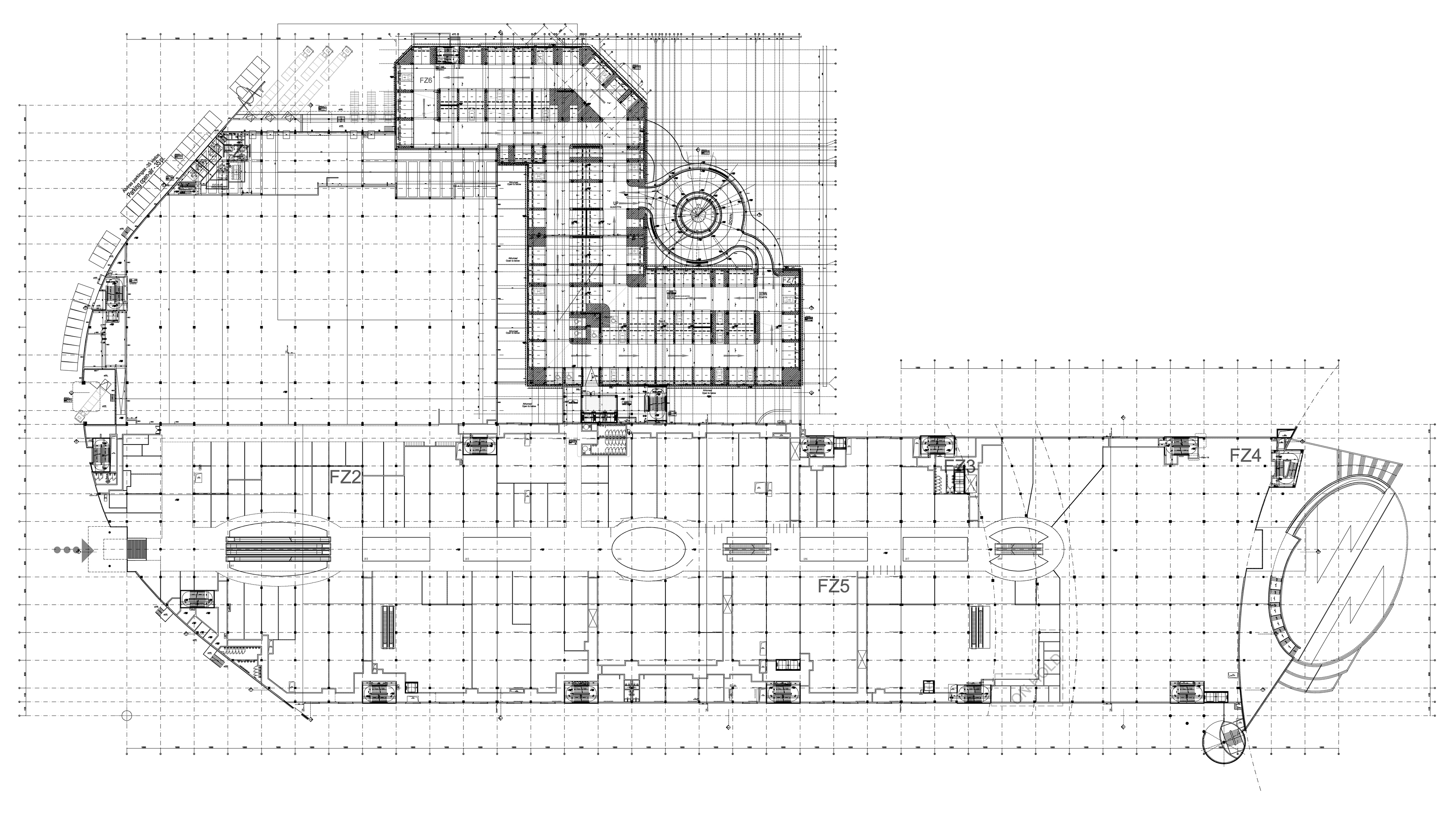
Plan
5/12
Paylaş
Resmi Orjinal Boyutunda Göster
OZAS Alışveriş ve Eğlence Merkezi
Project Location: Vilnius, Litvanya
Project Office: JAD, AU Architects
Project Type: Shopping Mall, Entertaintment Center
Employer: ECE Projektmanagement
Ana Yüklenici: Kayı Europa
Structural Project: KP
Mechanical Project: Energieeffizienz
Electrical Project: Erk Mühendislik
Project End Date: 2008
Total Construction Area: 59.000 m²