11/12
Paylaş
Resmi Orjinal Boyutunda Göster
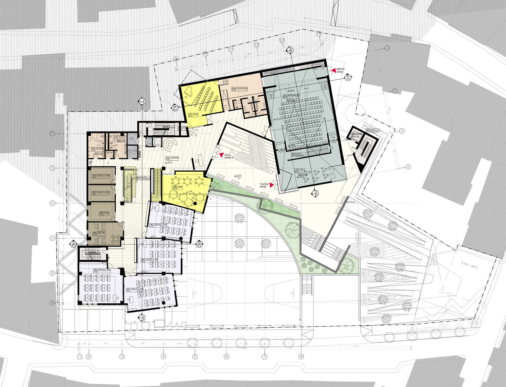
Esma Sultan Okulu
Proje Yeri: İstanbul, Beşiktaş
Proje Ofisi: SANALarc Mimarlık, Araştırma ve Kentsel Tasarım
Proje Tipi: İlkokul
Tasarım Ekibi: Murat Şanal, Alexis Şanal
İşveren: Beşiktaş Belediyesi
Yardımcı: Begüm Öner, Cibeles Sanchez Llupart, Merve Akdağ Öner, Hazar Arasan
Proje Başlangıç Yılı: 2011
Proje Bitiş Yılı: 2012
Toplam İnşaat Alanı: 11.600 m²