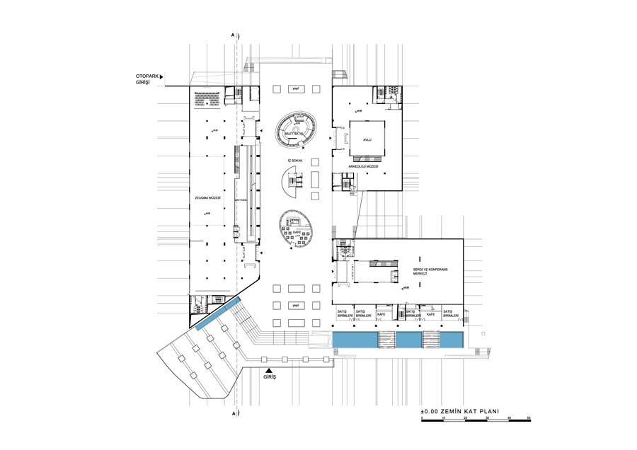
Zemin Kat Planı
11/12
Paylaş
Resmi Orjinal Boyutunda Göster
Zeugma Mozaik Müzesi
Proje Yeri: Gaziantep
Proje Ofisi: YPU Grubu
Proje Tipi: Müze
Tasarım Ekibi: Celal Abdi Güzer
İşveren: Gaziantep Büyükşehir Belediyesi
Yardımcı: Selen Kansu, R. Güneş Gökçek
Statik Projesi: Adnan Tanfener
Mekanik Projesi: YPU Grubu
Elektrik Projesi: YPU Grubu
Proje Başlangıç Yılı: 2007
Proje Bitiş Yılı: 2007
İnşaat Başlangıç Yılı: 2008
İnşaat Bitiş Yılı: 2010
Arsa Alanı: 30.000 m2
Toplam İnşaat Alanı: 25.000 m2