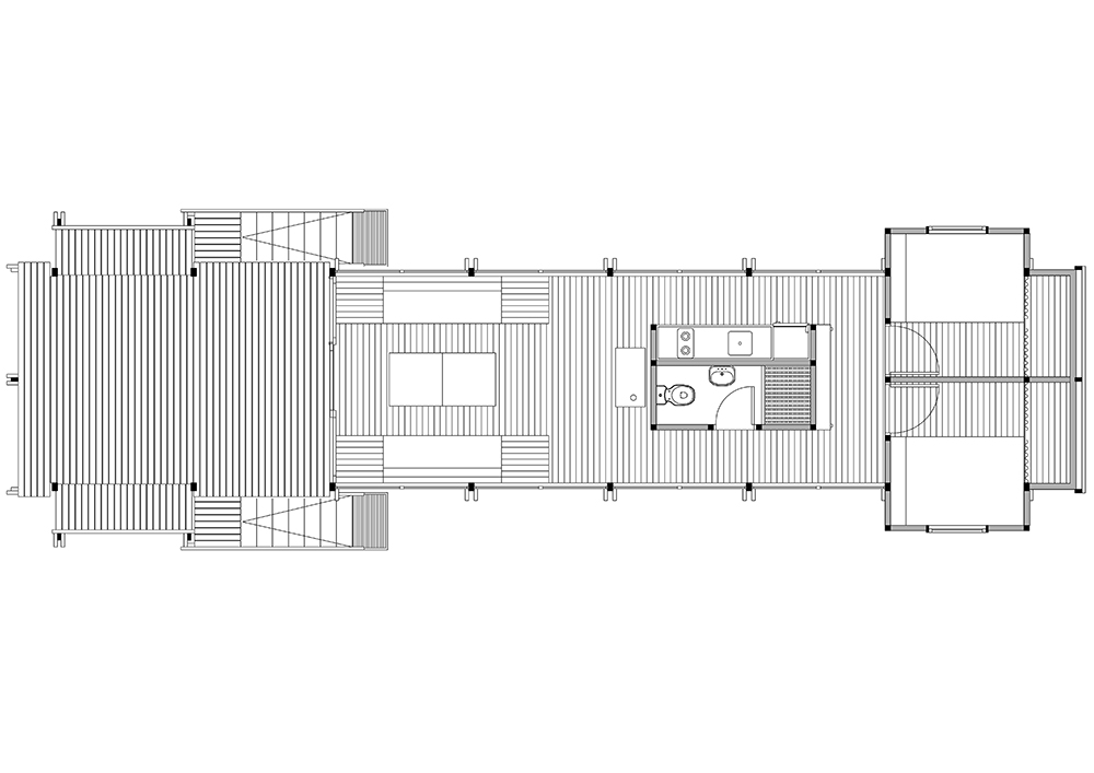
Plan
17/19
Paylaş
Resmi Orjinal Boyutunda Göster
Bağ Evi, Urla
Proje Yeri: Urla, İzmir
Proje Ofisi: Serhat Akbay Mimarlık
Proje Tipi: Tek Ev / Villa
Tasarım Ekibi: Serhat Akbay
İşveren: Serhat Akbay
Ana Yüklenici: Serhat Akbay
İç Mekan Projesi: Serhat Akbay
Statik Projesi: Serhat Akbay
Proje Başlangıç Yılı: 1999
Proje Bitiş Yılı: 1999
İnşaat Başlangıç Yılı: 2000
İnşaat Bitiş Yılı: 2000
Arsa Alanı: 6 dönüm
Toplam İnşaat Alanı: 75.62 m²