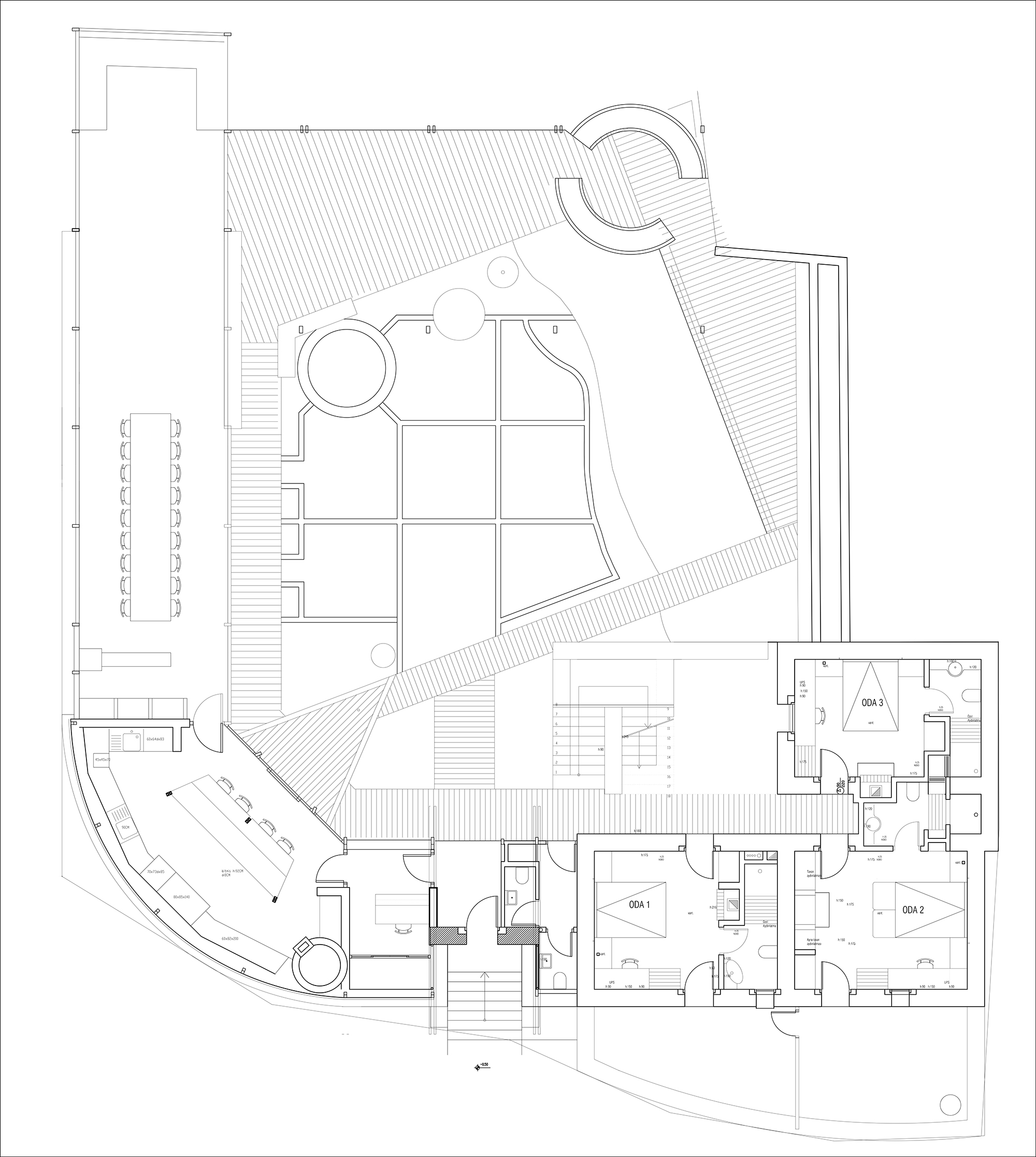
Plan
14/14
Paylaş
Resmi Orjinal Boyutunda Göster
Bağ Evi Butik Otel
Proje Ofisi: Serhat Akbay Mimarlık
Proje Tipi: Otel / Motel
Proje Tipi Grubu: Konaklama
Tasarım Ekibi: Serhat Akbay
İşveren: Sema Akbay
Yardımcı: Azize Andıç, Onur Çakıroğlu
Ana Yüklenici: Serhat Akbay
Peyzaj Mimarlığı: Serhat Akbay
İç Mekan Projesi: Serhat Akbay
Proje Yöneticisi: Serhat Akbay
Uygulama Projesi: Urla, İzmir
Statik Projesi: Onur Kutlukaya
Proje Başlangıç Yılı: 2008
Proje Bitiş Yılı: 2008
İnşaat Başlangıç Yılı: 2010
İnşaat Bitiş Yılı: 2013
Arsa Alanı: 614 m²
Toplam İnşaat Alanı: 330 m2
Vimeo Video Kimliği: 79680649, 79672413, 79887455