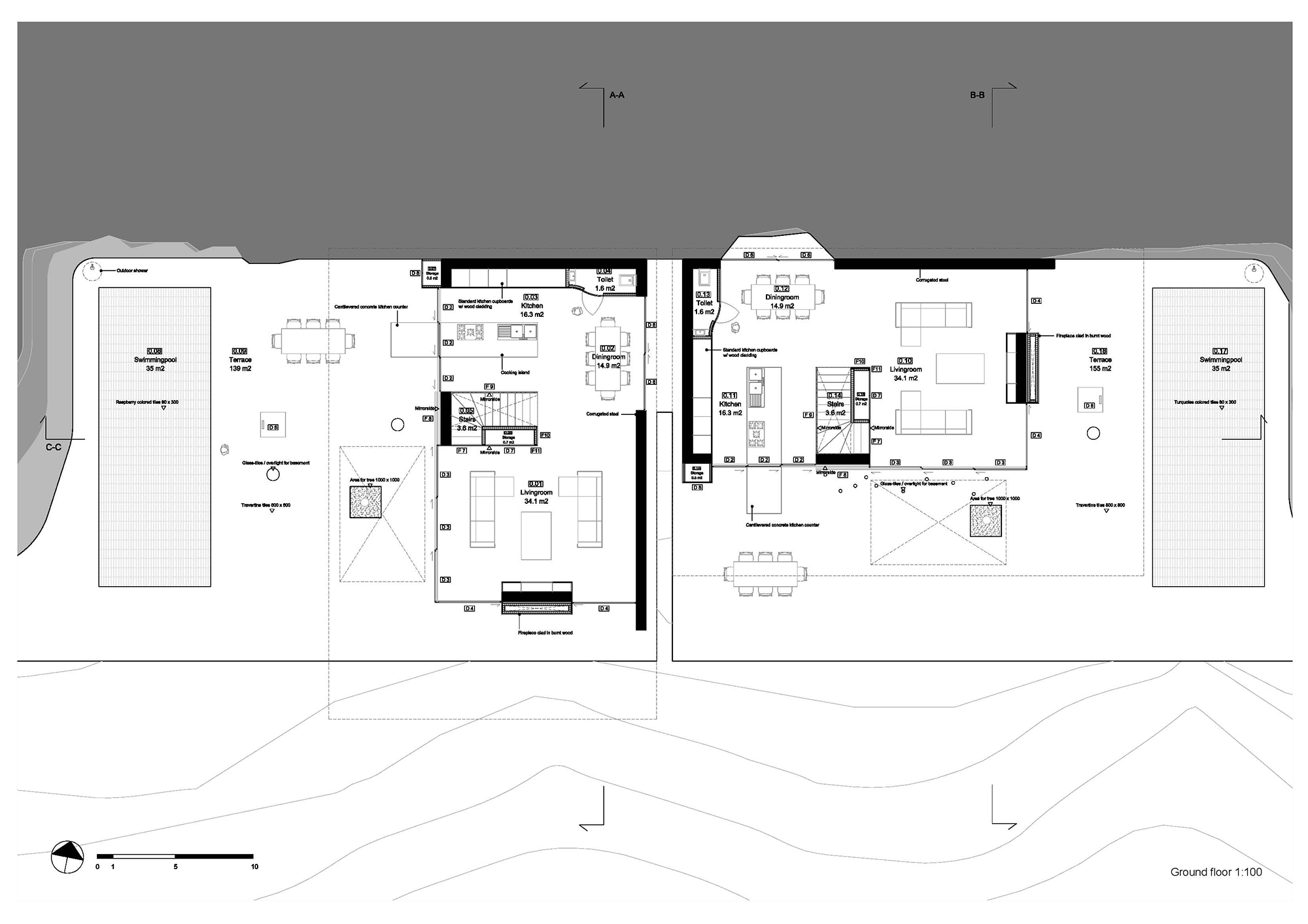
Plan
7/10
Paylaş
Resmi Orjinal Boyutunda Göster
Mazı Villaları
Proje Yeri: Bodrum, Muğla
Proje Ofisi: IND [Inter.National.Design], Powerhouse Company
Proje Tipi: Tek Ev / Villa
Proje Tipi Grubu: Konut
Tasarım Ekibi: Arman Akdoğan, Nanne de Ru
Yardımcı: Alejandro Gonzales Perez
Proje Başlangıç Yılı: 2009
Proje Bitiş Yılı: 2010
İnşaat Başlangıç Yılı: 2010
Arsa Alanı: 350 m²