13/26
Paylaş
Resmi Orjinal Boyutunda Göster
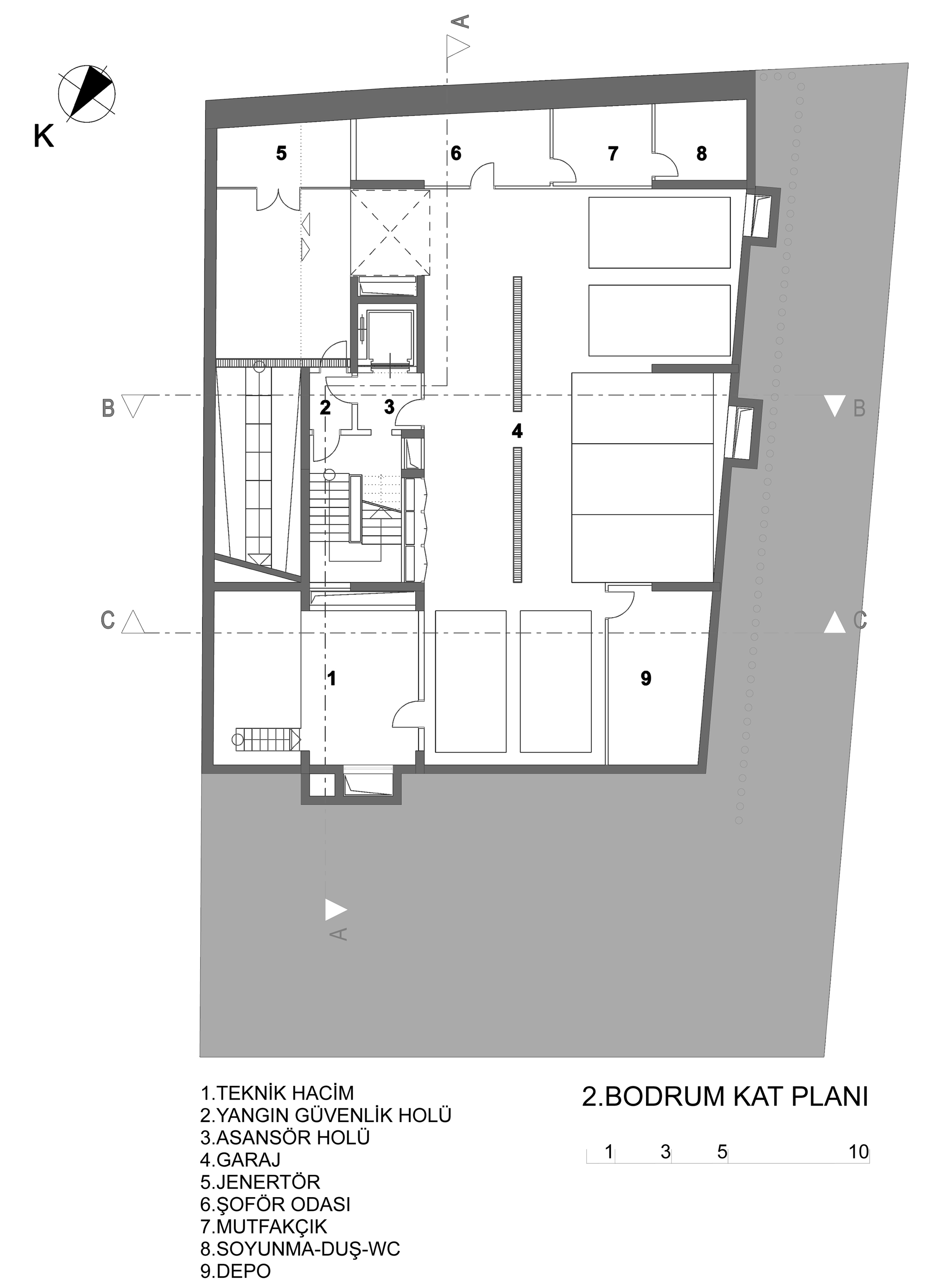
Dormak Yönetim Binası
Proje Yeri: Ankara, Çankaya
Proje Ofisi: Hatırlı Mimarlık
Proje Tipi: Ofis
Proje Tipi Grubu: Ticari
Tasarım Ekibi: Yeşim Hatırlı, Nami Hatırlı
İşveren: Mehmet Dora
Yardımcı: Tuğçe Şahin, Gökhan Başpınar, Egemen Berker Kızılcan
Ana Yüklenici: Elit Yapı
Statik Projesi: Portal Mühendislik
Mekanik Projesi: OTM Mühendislik
Elektrik Projesi: Özay Mühendislik
Proje Başlangıç Yılı: 2012
Proje Bitiş Yılı: 2013
İnşaat Başlangıç Yılı: 2013
İnşaat Bitiş Yılı: 2014
Arsa Alanı: 804 m²
Toplam İnşaat Alanı: 2.100 m2