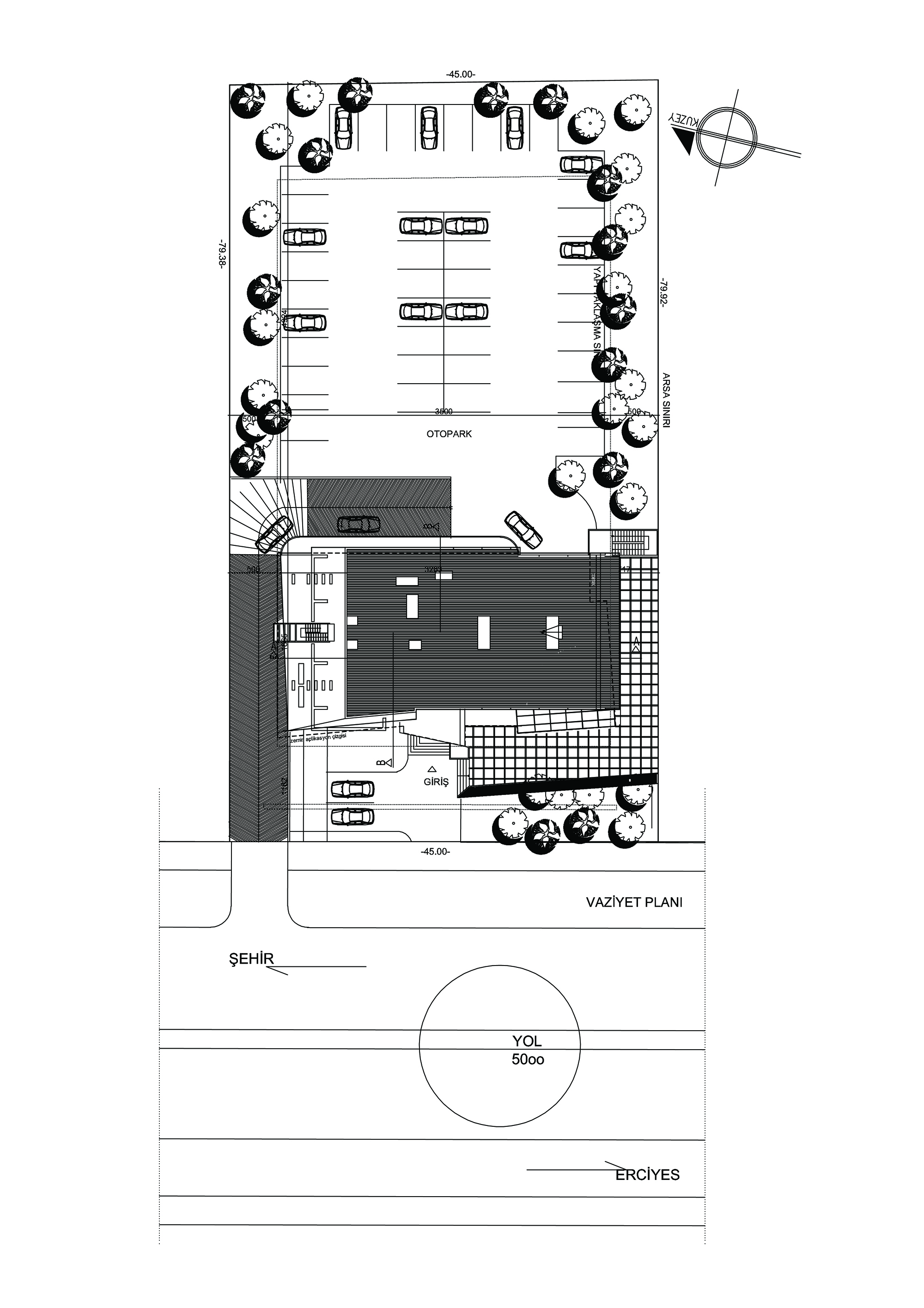
Vaziyet Planı
9/10
Paylaş
Resmi Orjinal Boyutunda Göster
Erciyes Üniversitesi Yüksek İrtifa Araştırma Merkezi (KAYAK Evi)
Proje Yeri: Kayseri
Proje Ofisi: Turim Mimarlık
Proje Tipi: Yüksek Öğretim Yapısı, Diğer Eğitim Yapıları
Tasarım Ekibi: Kemal Demir, Suat Çabuk
İşveren: Erciyes Üniversitesi
Ana Yüklenici: Erciyes Üniversitesi
Proje Başlangıç Yılı: 2002
Proje Bitiş Yılı: 2002
İnşaat Başlangıç Yılı: 2002
İnşaat Bitiş Yılı: 2004
Arsa Alanı: 3.600 m²
Toplam İnşaat Alanı: 3.100 m²