Plan
14/16
Paylaş
Resmi Orjinal Boyutunda Göster
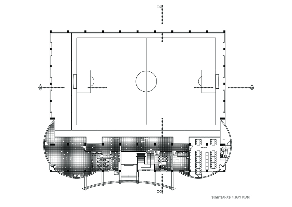
Yenişehir Mahallesi Hüsamettin Çetinbulut Semt Sahası ve Kültür Tesisi
Proje Yeri: Kayseri
Proje Ofisi: Turim Mimarlık
Proje Tipi: Kültür Merkezi, Spor Salonu
Tasarım Ekibi: Suat Çabuk, Kemal Demir
İşveren: Kayseri Büyükşehir Belediyesi
Ana Yüklenici: Kayseri Büyükşehir Belediyesi
Proje Başlangıç Yılı: 2001
Proje Bitiş Yılı: 2001
İnşaat Başlangıç Yılı: 2001
İnşaat Bitiş Yılı: 2002
Arsa Alanı: 3.100 m²
Toplam İnşaat Alanı: 2.550 m²