Plan
10/13
Paylaş
Resmi Orjinal Boyutunda Göster
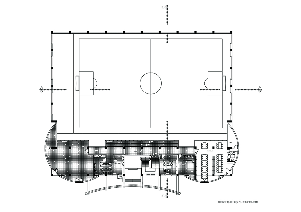
Yeşil Mahalle Semt Sahası ve Kültür Tesisi
Proje Yeri: Kayseri
Proje Ofisi: Turim Mimarlık
Proje Tipi: Spor Salonu, Kültür Merkezi
Tasarım Ekibi: Kemal Demir, Suat Çabuk
İşveren: Kayseri Büyükşehir Belediyesi
Yardımcı: Hakan Özkan
Ana Yüklenici: Kayseri Büyükşehir Belediyesi
Proje Başlangıç Yılı: 2002
Proje Bitiş Yılı: 2002
İnşaat Başlangıç Yılı: 2002
İnşaat Bitiş Yılı: 2003
Arsa Alanı: 3.100 m²
Toplam İnşaat Alanı: 2.550 m²