10/12
Paylaş
Resmi Orjinal Boyutunda Göster
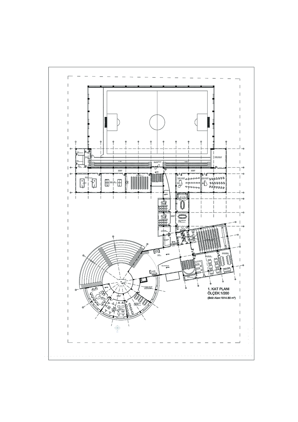
Danişment Gazi Mahallesi Kültür ve Spor Kompleksi
Proje Yeri: Kayseri
Proje Ofisi: Turim Mimarlık
Proje Tipi: Spor Salonu, Kültür Merkezi
Tasarım Ekibi: Kemal Demir, Suat Çabuk
İşveren: Kayseri Büyükşehir Belediyesi
Ana Yüklenici: Kayseri Büyükşehir Belediyesi
Proje Başlangıç Yılı: 2002
Proje Bitiş Yılı: 2002
Arsa Alanı: 18.000 m²
Toplam İnşaat Alanı: 3.900 m²