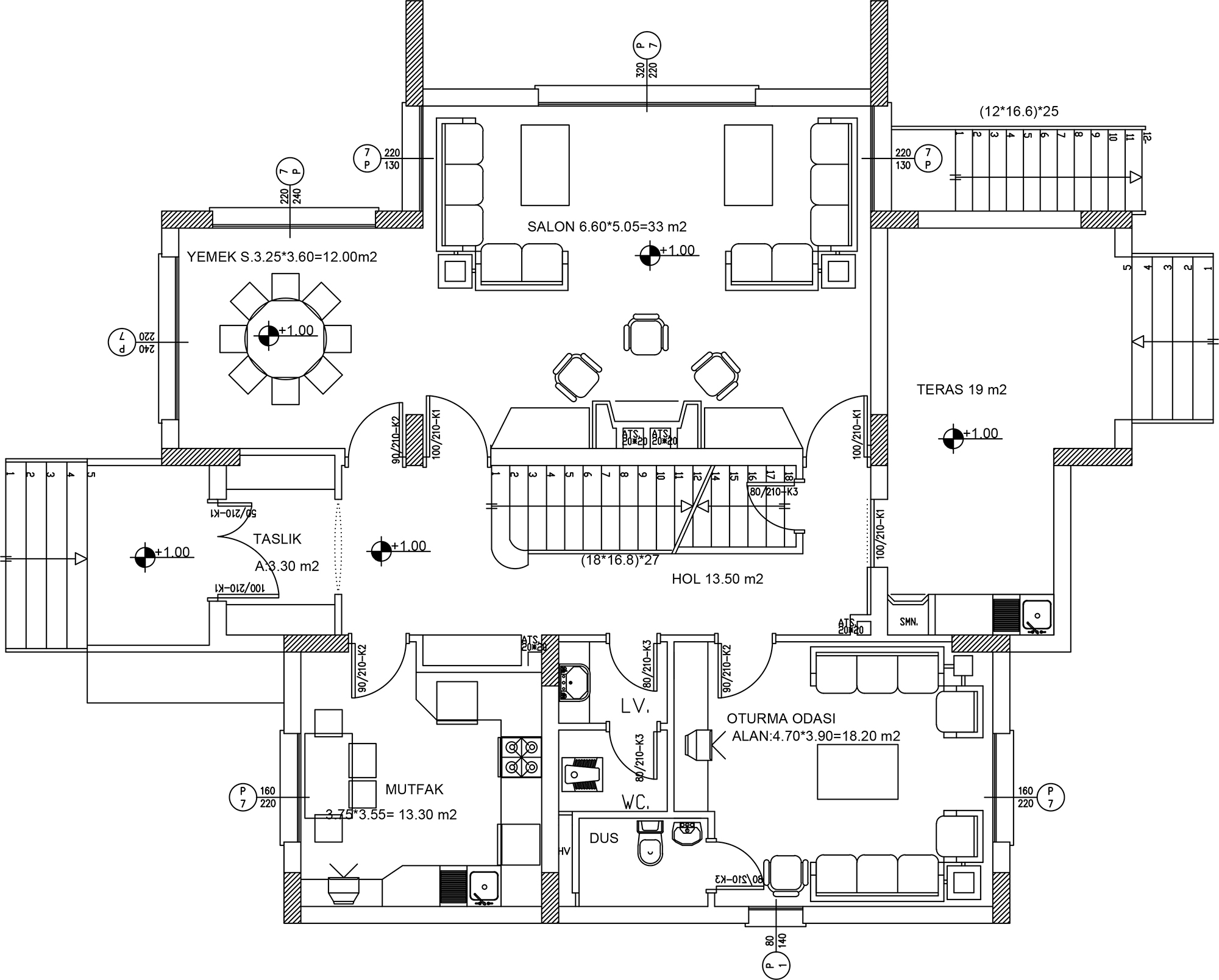
Plan
12/12
Paylaş
Resmi Orjinal Boyutunda Göster
Abdi Hattat Villası
Project Location: Kayseri
Project Office: Turim Mimarlık
Project Type: Single House
Tasarım Ekibi: Kemal Demir
Yardımcı: Hami Türkyar
Ana Yüklenici: Abdi Hattat
Structural Project: Hüseyin Özbağ
Project Start Date: 2003
Project End Date: 2003
Construction Start Date: 2003
Construction End Date: 2005
Building Plot Area: 1.010 m²
Total Construction Area: 495 m²