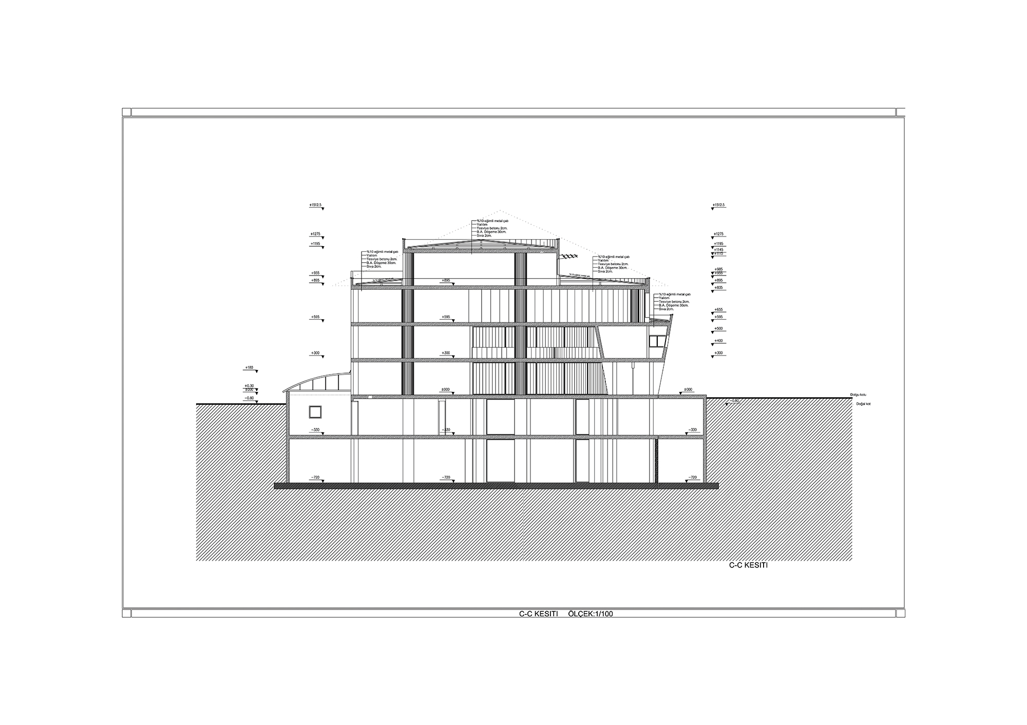
Kesit
32/39
Paylaş
Resmi Orjinal Boyutunda Göster
İzzi Mobilya
Proje Yeri: Kayseri
Proje Ofisi: Turim Mimarlık
Proje Tipi: Mağaza / Showroom
Tasarım Ekibi: Kemal Demir
Yardımcı: Hami Türkyar
Ana Yüklenici: İzzi Mobilya
Statik Projesi: Hüseyin Özbağ
Proje Başlangıç Yılı: 2005
Proje Bitiş Yılı: 2006
İnşaat Başlangıç Yılı: 2006
İnşaat Bitiş Yılı: 2008
Arsa Alanı: 1.700 m2
Toplam İnşaat Alanı: 5.233 m²