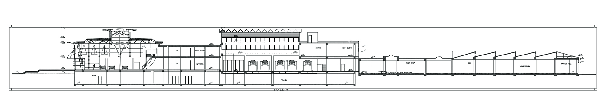
Kesit
11/17
Paylaş
Resmi Orjinal Boyutunda Göster
Özsa Showroom
Project Location: Kayseri
Project Office: Turim Mimarlık
Project Type: Store / Showroom
Tasarım Ekibi: Kemal Demir
Yardımcı: Kasım Balcı
Ana Yüklenici: Özsa
Structural Project: Hüseyin Özbağ
Project Start Date: 2002
Project End Date: 2002
Construction Start Date: 2002
Construction End Date: 2004
Building Plot Area: 11.900 m²
Total Construction Area: 17.300 m2