8/9
Paylaş
Resmi Orjinal Boyutunda Göster
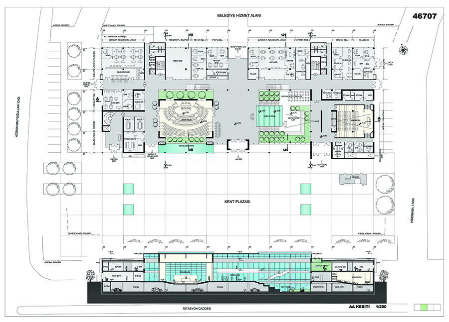
Katılımcı, Diyarbakır Yenişehir Hizmet Binası Yarışması
Project Location: Diyarbakır
Project Office: Turim Mimarlık
Project Type: Belediye Hizmet Binası
Proje Tipi Grubu: Katılımcı
Tasarım Ekibi: Kemal Demir, Ozan N. Binboğa, Kıtay Durmuş
Yardımcı: Hami Türkyar
Project Start Date: 2005
Project End Date: 2005
Building Plot Area: 1.930 m²
Total Construction Area: 9.757 m²