Plan
6/11
Paylaş
Resmi Orjinal Boyutunda Göster
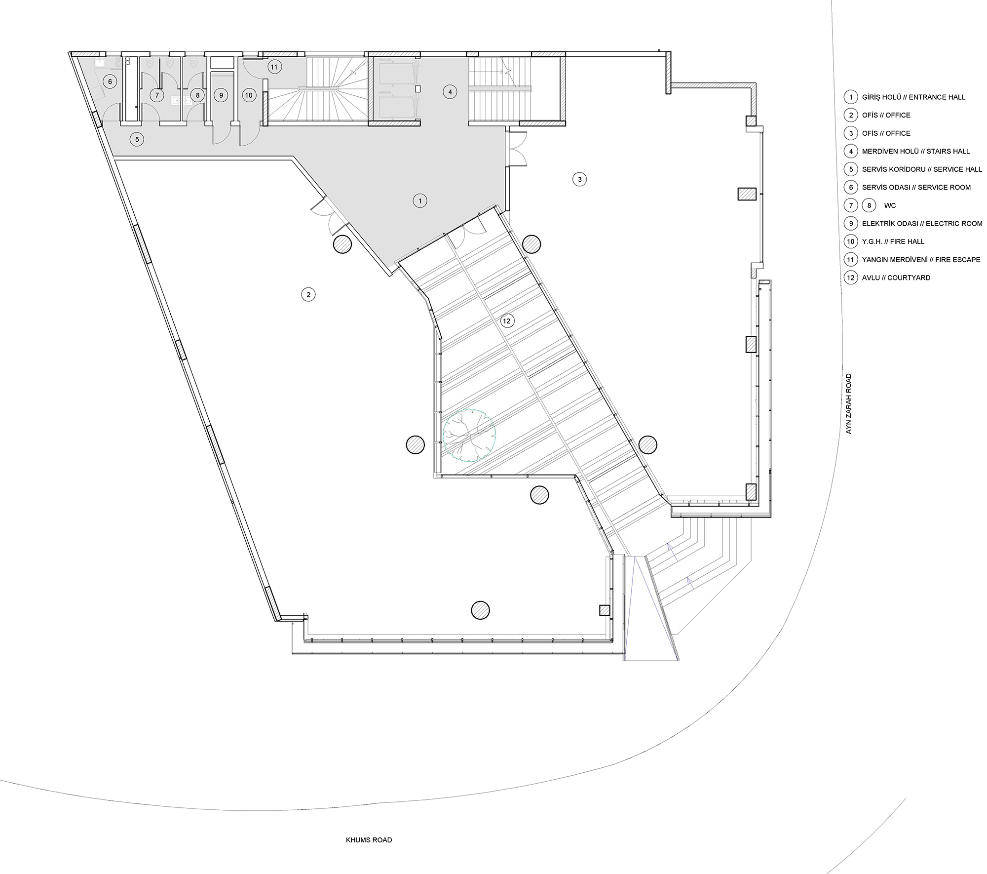
Furnaj Ofis Binası
Proje Yeri: Tripoli, Libya
Proje Tipi: Ofis
Tasarım Ekibi: Gül Güven, Özdihan Gökçe, Fatih Erduman, Gülistan Durmaz, Buğra Şentürk, Zeynep Aydın
İşveren: Naslı İnşaat
İç Mekan Projesi: VEN Mimarlık
Statik Projesi: Minsa Mühendislik
Mekanik Projesi: Artı Mühendislik
Elektrik Projesi: RAM Mühendislik
Tesisat Projesi: Artı Mühendislik
Proje Başlangıç Yılı: 2012
Proje Bitiş Yılı: 2012
İnşaat Başlangıç Yılı: 2012
Arsa Alanı: 1.500 m²
Toplam İnşaat Alanı: 3465 m²