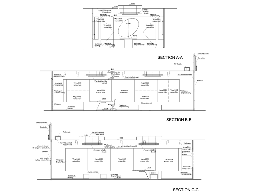
Kesitler
6/11
Paylaş
Resmi Orjinal Boyutunda Göster
DAIKIN Showroom
Project Office: I-AM
Project Type: Store / Showroom
Proje Tipi Grubu: Commercial
Tasarım Ekibi: Merve Köklü, Başar Bostancı, Gözde Yılmaz
Employer: DAIKIN
Projcet Manager: Ertuğrul Yurdakul, Emre Kuzlu, Pete Champion
Construction Drawings: On Mimarlık