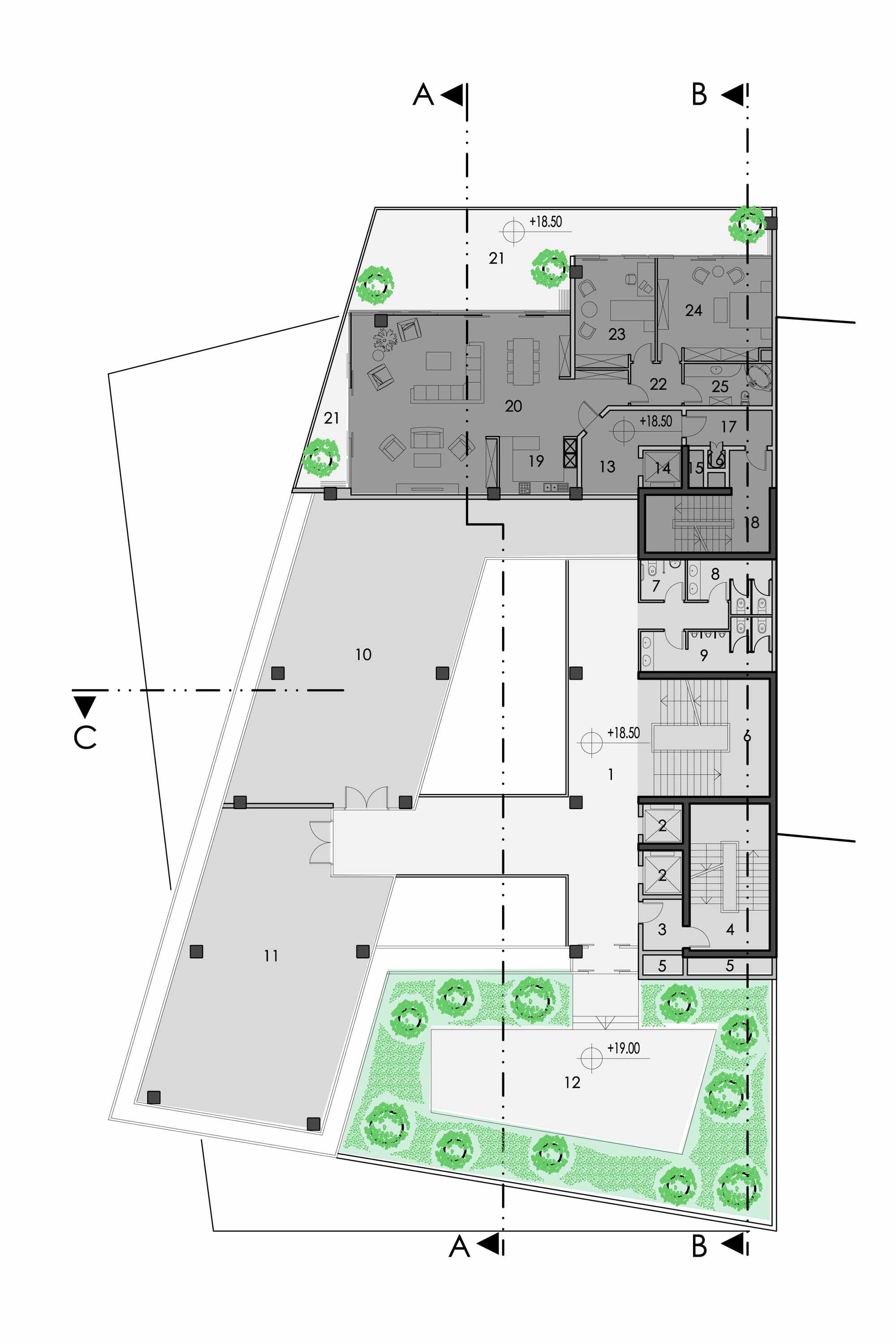
Kat Planı
19/28
Paylaş
Resmi Orjinal Boyutunda Göster
Benetton Tahran Karma Kullanım Binası
Project Location: Tahran, İran
Project Office: Manço Mimarlık
Project Type: Offices
Tasarım Ekibi: Aytaç Manço, Ali Manço
Yardımcı: Gufran Baykal
Project Start Date: 2009
Project End Date: 2009
Building Plot Area: 1.560 m²
Total Construction Area: 11.500 m2