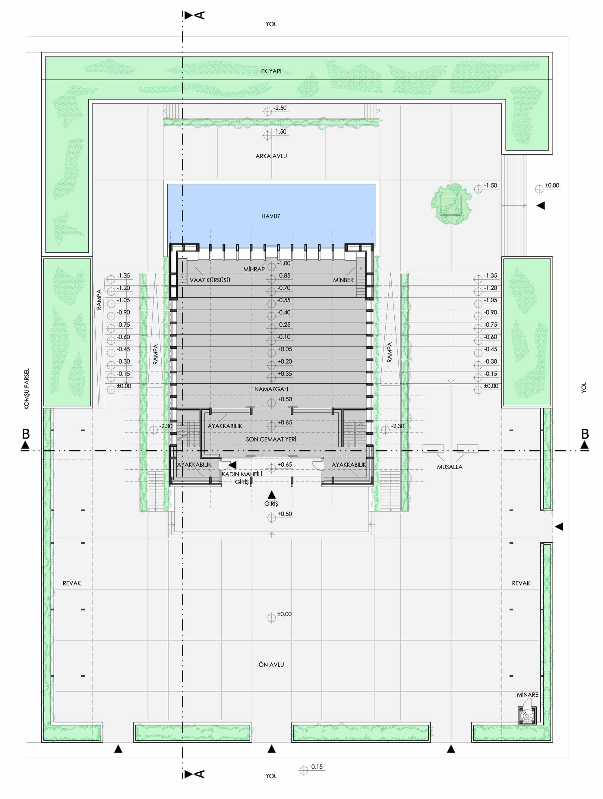
Kat Planı
12/20
Paylaş
Resmi Orjinal Boyutunda Göster
Cami Mimarisi Üzerine Fikir Yarışması Projesi
Proje Yeri: Kayseri
Proje Ofisi: Manço Mimarlık
Proje Tipi: Cami / Mescit
Proje Tipi Grubu: Katılımcı
Tasarım Ekibi: Aytaç Manço, Ali Manço
İşveren: Kayseri Büyükşehir Belediyesi
Yardımcı: Zühtü Usta, Gufran Baykal
Proje Başlangıç Yılı: 2010
Proje Bitiş Yılı: 2010
Arsa Alanı: 3.375 m²
Toplam İnşaat Alanı: 1.210 m²