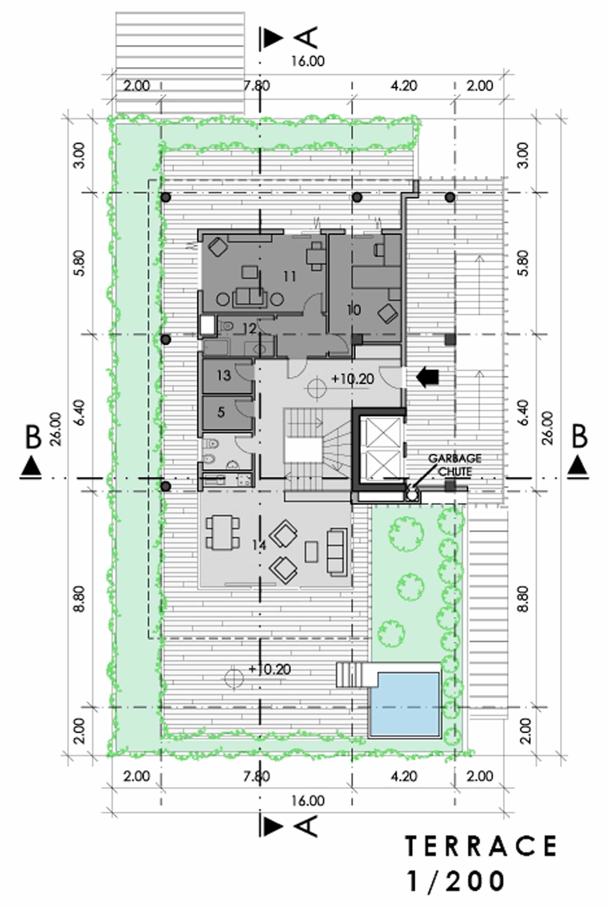
Kat Planı
21/31
Paylaş
Resmi Orjinal Boyutunda Göster
Green 360 Loftlar
Proje Yeri: Peru
Proje Ofisi: Manço Mimarlık
Proje Tipi: Konut Sitesi / Grubu
Tasarım Ekibi: Aytaç Manço, Ali Manço
Yardımcı: Zühtü Usta, Gufran Baykal
Proje Başlangıç Yılı: 2009
Proje Bitiş Yılı: 2009
Arsa Alanı: 15.906 m²
Toplam İnşaat Alanı: 16.800 m²