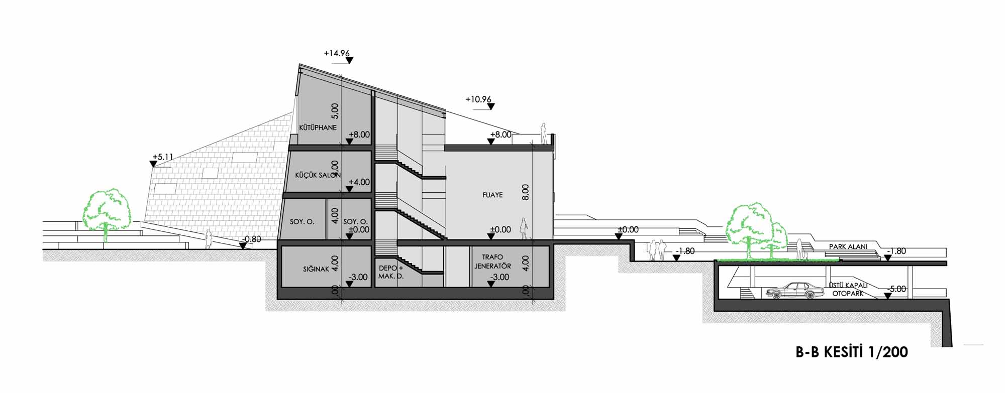
Kesit
17/23
Paylaş
Resmi Orjinal Boyutunda Göster
Kadirli Belediyesi Hizmet Binası ve Kültür Merkezi Ulusal Mimari Proje Yarışması
Proje Yeri: Osmaniye
Proje Ofisi: Manço Mimarlık
Proje Tipi: Belediye Hizmet Binası, Kültür Merkezi
Proje Tipi Grubu: Katılımcı
Tasarım Ekibi: Aytaç Manço, Ali Manço
İşveren: Kadirli Belediyesi
Yardımcı: Zühtü Usta, Gufran Baykal
Mekanik Projesi: GN Mühendislik
Elektrik Projesi: HB Teknik Elektrik Mühendislik
Proje Başlangıç Yılı: 2009, 2009
Arsa Alanı: , 6.206 m²
Toplam İnşaat Alanı: 6.870 m²