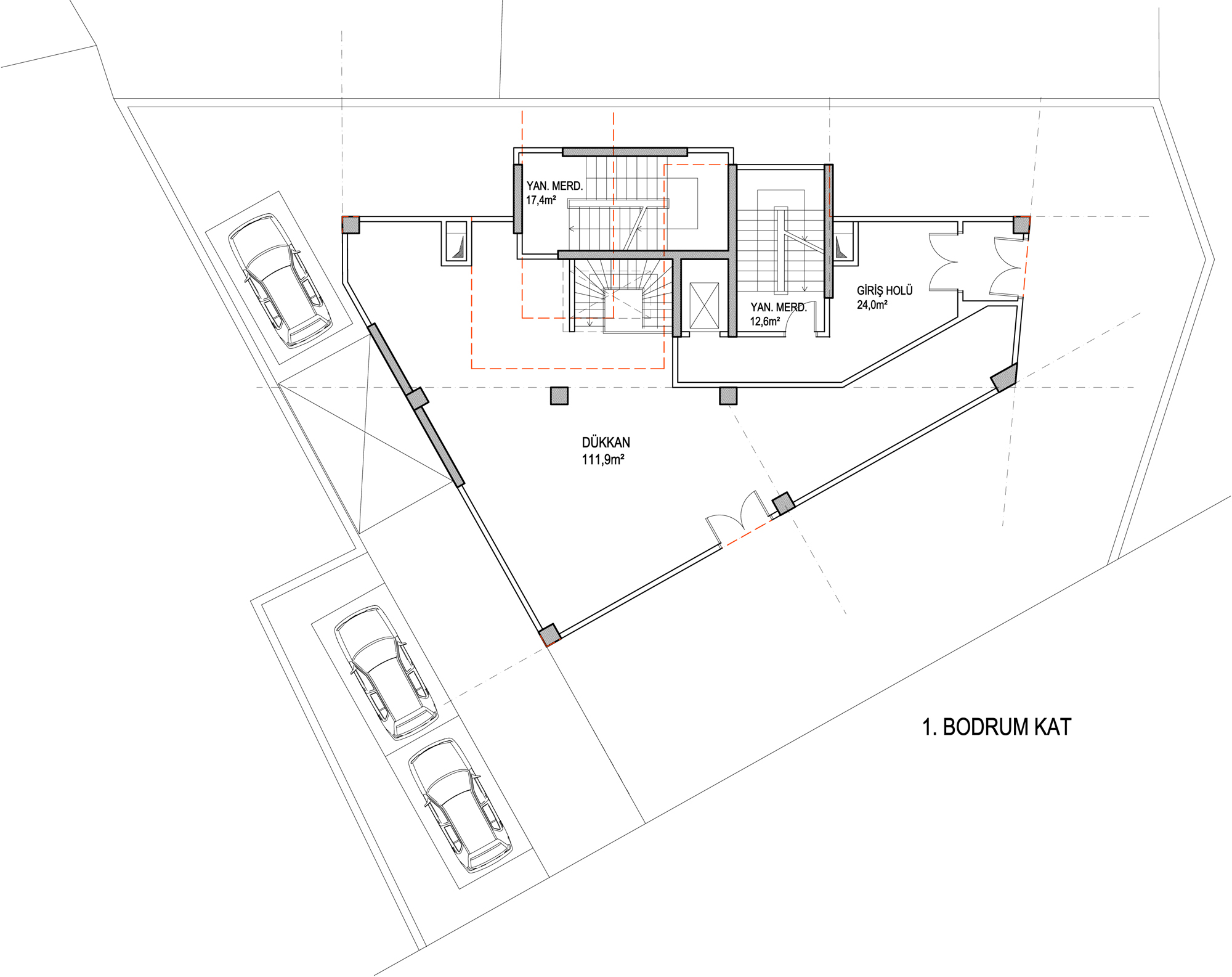
Kat Planı
11/15
Paylaş
Resmi Orjinal Boyutunda Göster
Mecidiyeköyde Ofis Binası
Project Location: İstanbul, Şişli
Project Office: Manço Mimarlık
Project Type: Offices
Tasarım Ekibi: Ali Manço, Zühtü Usta
Project Start Date: 2012
Project End Date: 2012
Building Plot Area: 529 m²
Total Construction Area: 3052 m²