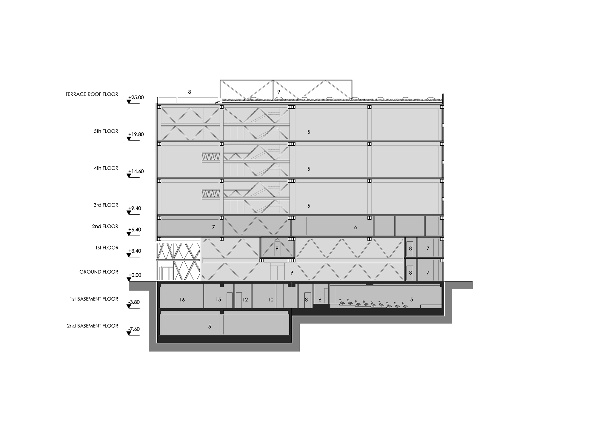
Kesit
31/32
Paylaş
Resmi Orjinal Boyutunda Göster
Moulin Rouge Dans Okulu Yarışma Projesi
Proje Yeri: Paris, Fransa
Proje Ofisi: Manço Mimarlık
Proje Tipi: Diğer Eğitim Yapıları
Tasarım Ekibi: Aytaç Manço, Ali Manço
Yardımcı: Zühtü Usta, Gufran Baykal
Proje Başlangıç Yılı: 2009
Proje Bitiş Yılı: 2009
Arsa Alanı: , 638 m²
Toplam İnşaat Alanı: , , 5.075 m²