19/22
Paylaş
Resmi Orjinal Boyutunda Göster
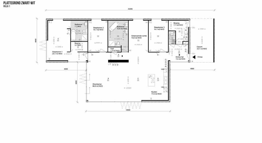
Kampen Villaları
Project Location: Hollanda
Project Office: IND [Inter.National.Design], Oblique / Samir Bantal
Project Type: Housing Complex
Tasarım Ekibi: Arman Akdoğan, Felix Madrazo, Samir Bantal
Yardımcı: Alejandro Gonzales Perez, Jose Vives
Project Start Date: 2010
Project End Date: 2011