9/17
Paylaş
Resmi Orjinal Boyutunda Göster
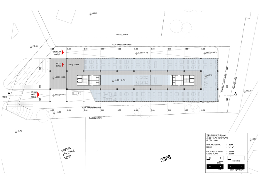
Kağıthane Lojistik Merkezi
Proje Yeri: Kağıthane, İstanbul
Proje Ofisi: Baraka Mimarlık, Dolmus Architekten
Proje Tipi: Diğer Endüstri Yapıları
Tasarım Ekibi: Abdurrahman Çekim, Sevilay Uğur Çekim, Gani Turunç, Cedric von Däniken
İşveren: Sinpaş Yapı
Yardımcı: Didem Cengiz, İbrahim Çelebi
Proje Başlangıç Yılı: 2012
Proje Bitiş Yılı: 2012
Toplam İnşaat Alanı: 22.000 m²