5/6
Paylaş
Resmi Orjinal Boyutunda Göster
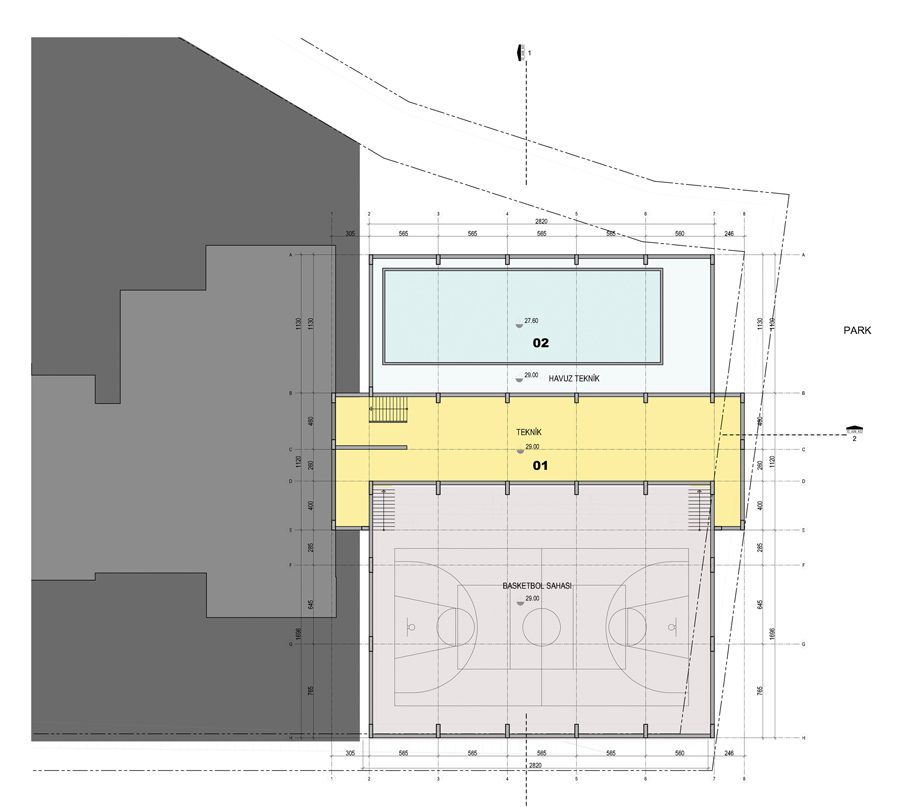
Acıbadem İlkokulu Spor Salonu
Proje Yeri: İstanbul, Kadıköy
Proje Ofisi: Baraka Mimarlık
Proje Tipi: Spor Salonu
Tasarım Ekibi: Abdurrahman Çekim, Sevilay Uğur Çekim, Çağla Makara, Tuğçe Torunlar
İşveren: Sinpaş Yapı
Statik Projesi: Optimum Proje Danışmanlık
Mekanik Projesi: Optimum Proje Danışmanlık
Elektrik Projesi: Optimum Proje Danışmanlık
Proje Başlangıç Yılı: 2013
Proje Bitiş Yılı: 2014
İnşaat Başlangıç Yılı: 2014
Arsa Alanı: 10.000 m²
Toplam İnşaat Alanı: 1.500 m²