42/44
Paylaş
Resmi Orjinal Boyutunda Göster
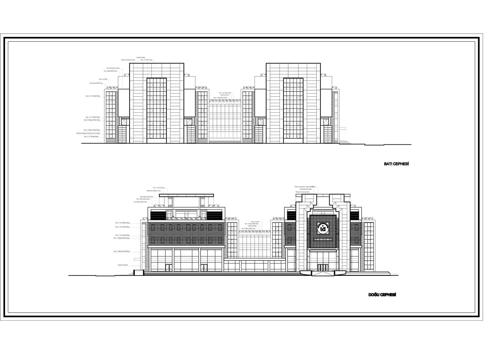
Akdeniz Üniversitesi Eğitim Fakültesi
Project Location: Antalya
Project Type: University Campus, Higher Education Building
Projcet Manager: Akdeniz Üniversitesi Yapı İşleri ve Teknik Daire Başkanlığı
Plumbing Project: Taner Tazegül
Project Start Date: 2011
Project End Date: 2011
Construction Start Date: 2011
Construction End Date: 2013
Building Plot Area: 25.750 m²
Total Construction Area: 29.031 m²