20/27
Paylaş
Resmi Orjinal Boyutunda Göster
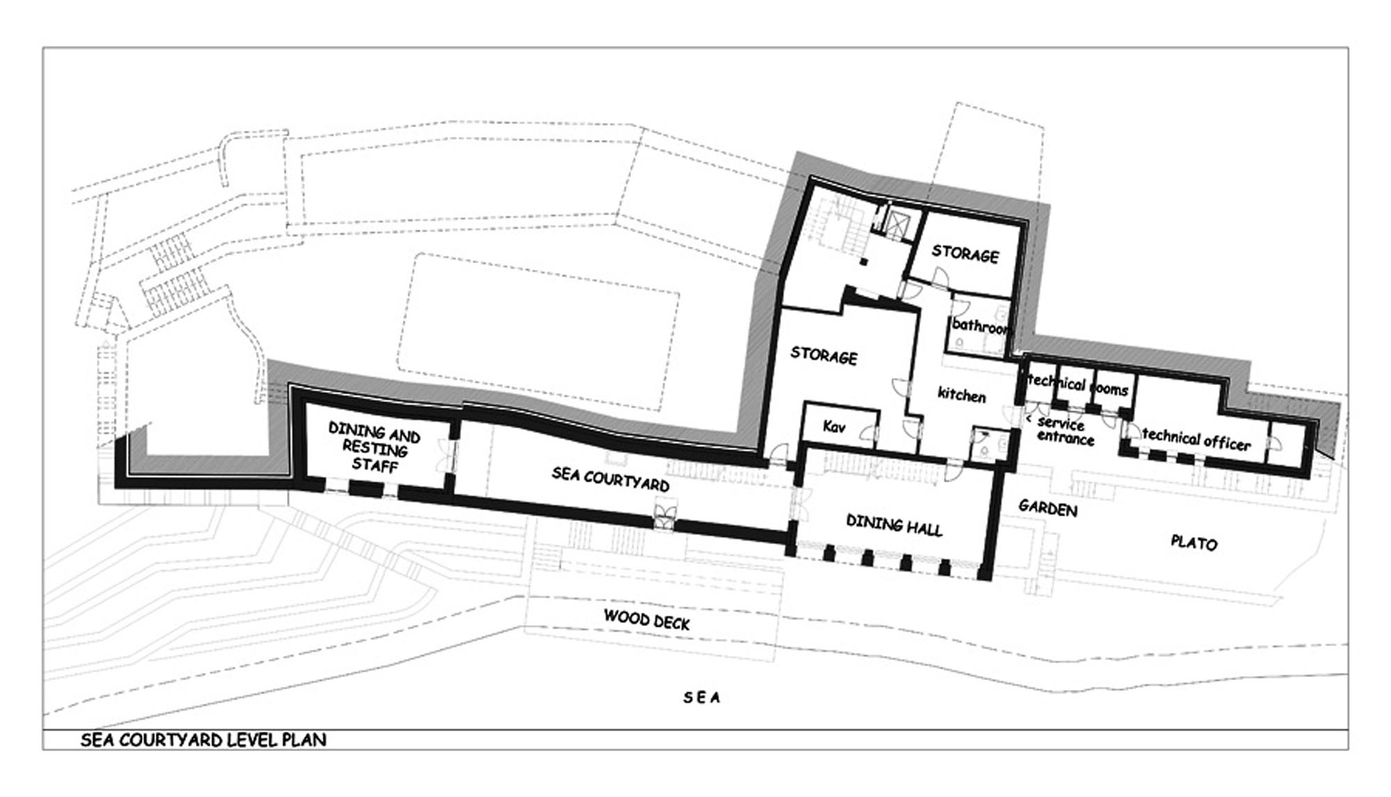
Ayışığı Manastırı
Project Location: Cunda Adası, Ayvalık, Balıkesir
Project Office: EPA Mimarlık ve Şehircilik Atölyesi
Project Type: Church / Chapel
Tasarım Ekibi: Ersen Gürsel, Haluk Erar
Employer: Suzan Sabancı Dinçer
Yardımcı: Nihal Keskintaş, Oya Erar
Structural Project: Ahmet Topbaş
Mechanical Project: Coşkun Özbaş
Electrical Project: Erdoğan Kırcı
Project End Date: 2009
Construction Start Date: 2010, 2011