16/16
Paylaş
Resmi Orjinal Boyutunda Göster
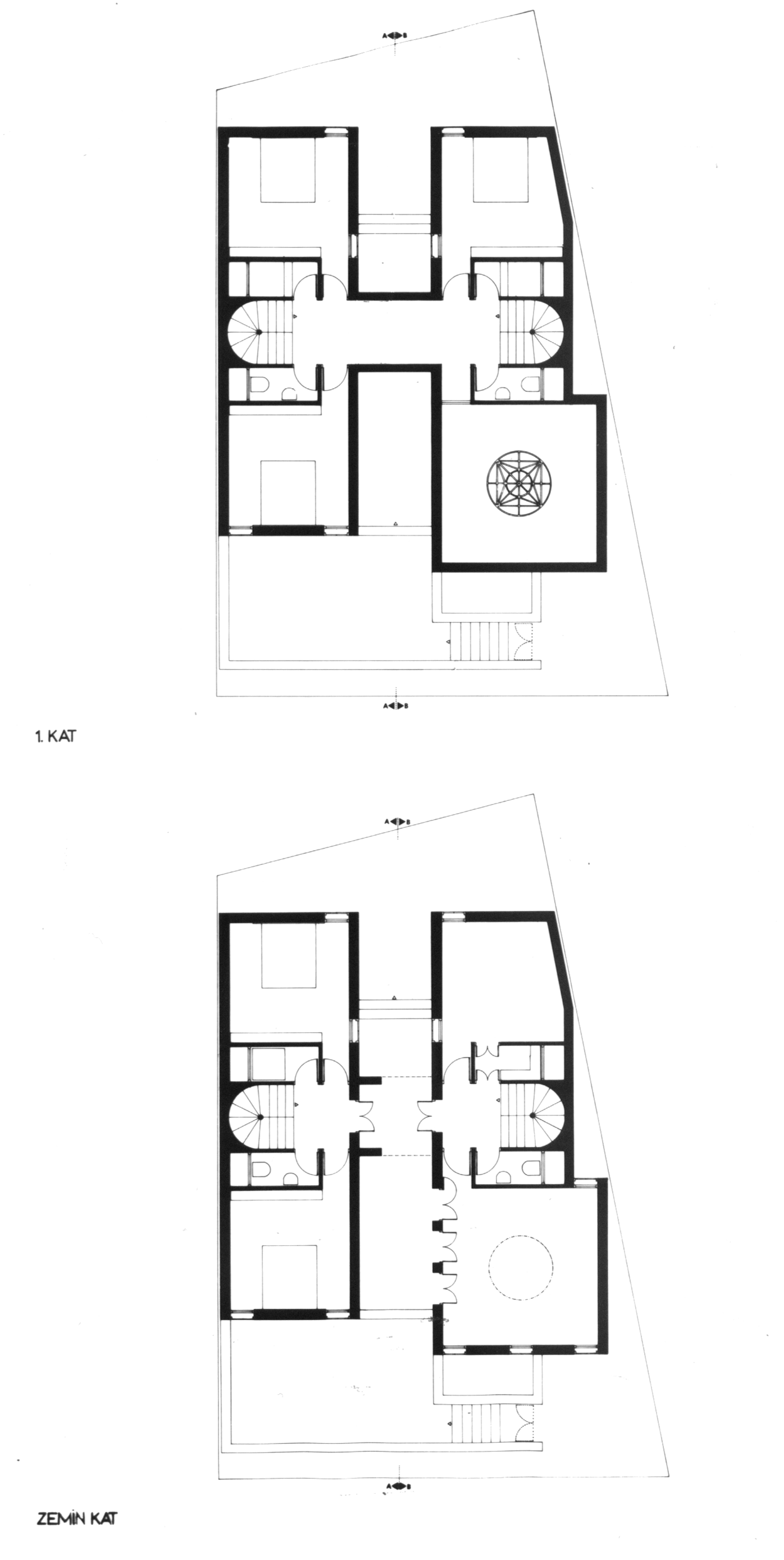
Kızıldel Evi
Proje Yeri: Bodrum, Muğla
Proje Tipi: Tek Ev / Villa
Proje Tipi Grubu: Konut
Tasarım Ekibi: Ziya Tanalı, Ragıp Buluç, Ercan Yener
İşveren: Özkaşıkçı ve Kızıldel Aileleri
Proje Başlangıç Yılı: 1976
Proje Bitiş Yılı: 1976
İnşaat Başlangıç Yılı: 1976
İnşaat Bitiş Yılı: 1977
Toplam İnşaat Alanı: 240 m²