8/13
Paylaş
Resmi Orjinal Boyutunda Göster
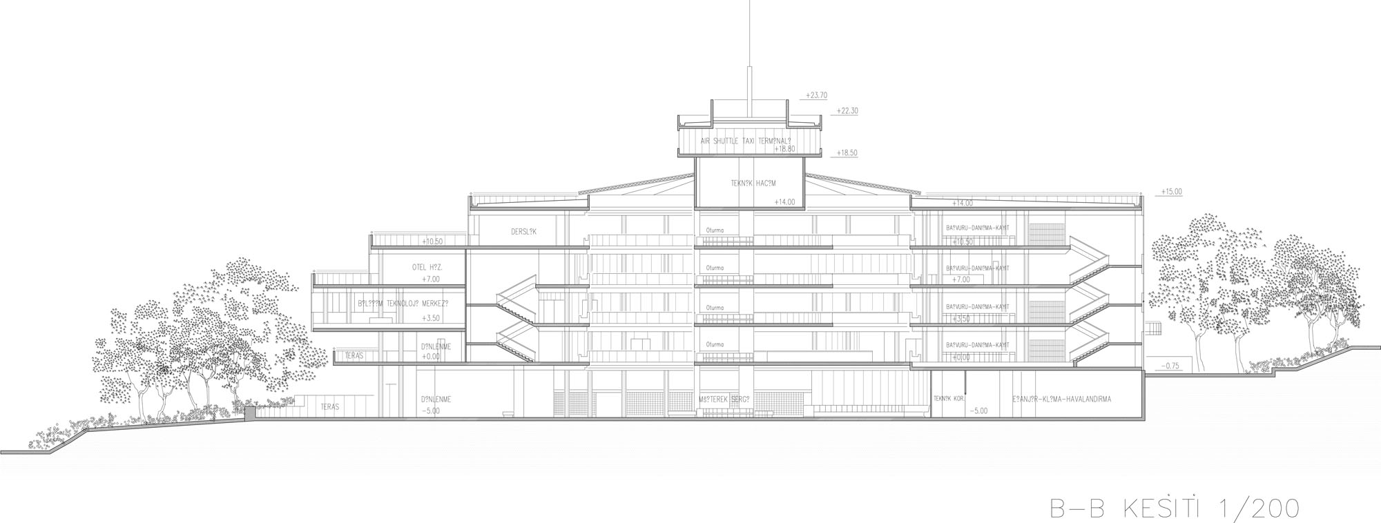
İMKB Kültür Kongre Konaklama Eğitim Tesisleri AR-GE Binası
Proje Yeri: İstanbul, İstinye
Proje Tipi: Ar-Ge Binası
Tasarım Ekibi: Oktay Veral
İşveren: İMKB