6/6
Paylaş
Resmi Orjinal Boyutunda Göster
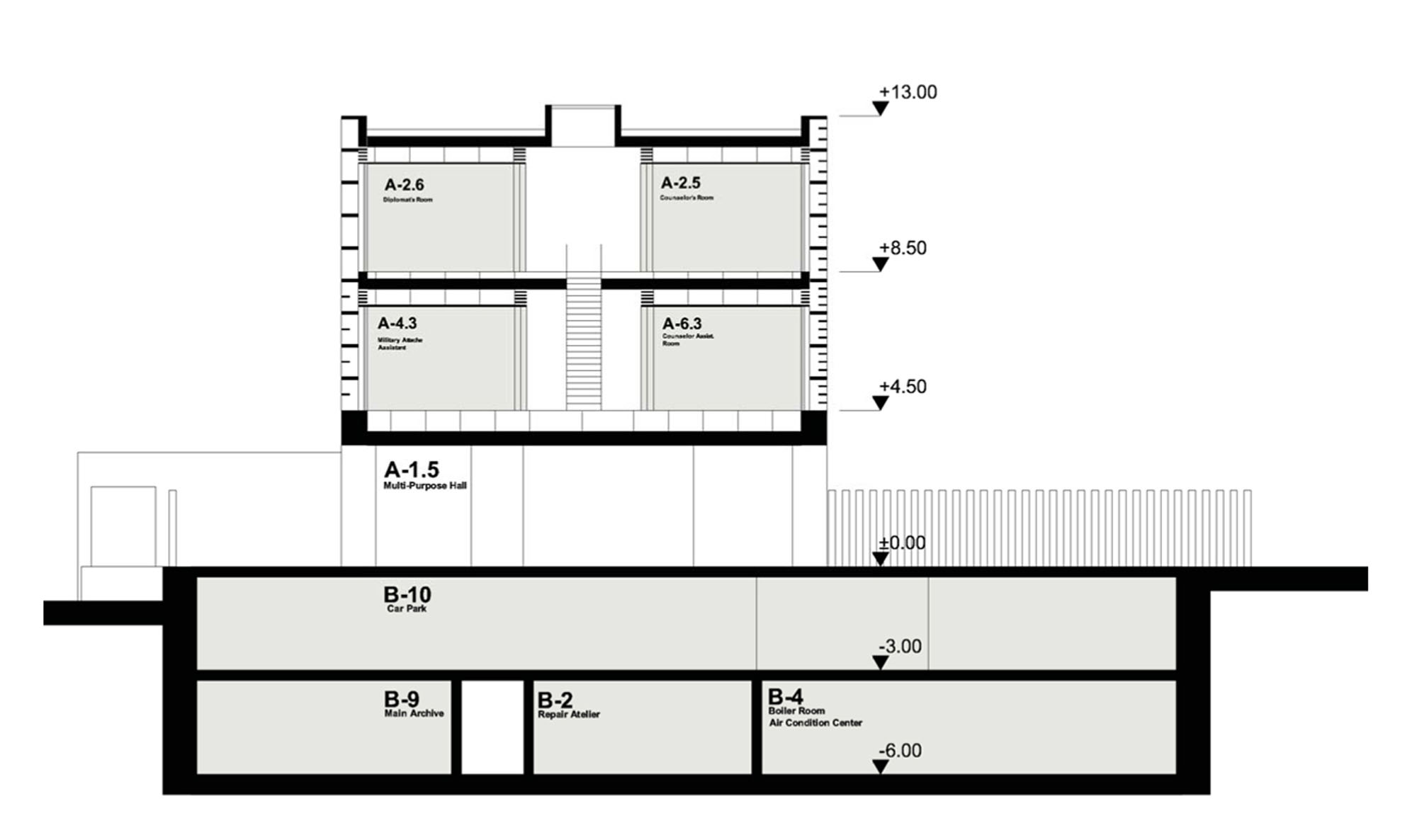
T.C. Madrid Kançılarya Binası
Proje Yeri: Madrid, İspanya
Proje Ofisi: Teğet Mimarlık
Proje Tipi: Elçilik / Konsolosluk
Proje Tipi Grubu: Kamu
Tasarım Ekibi: Mehmet Kütükçüoğlu, Ertuğ Uçar
İşveren: Dışişleri Bakanlığı
Yardımcı: Nazlı Balkaya, Mert Üçer, Yiğit Yalgın, Mert Velipaşaoğlu, Tuberk Altuntaş, Alev Dağlı
Proje Başlangıç Yılı: 2011
Proje Bitiş Yılı: 2011
Toplam İnşaat Alanı: 4.130 m²