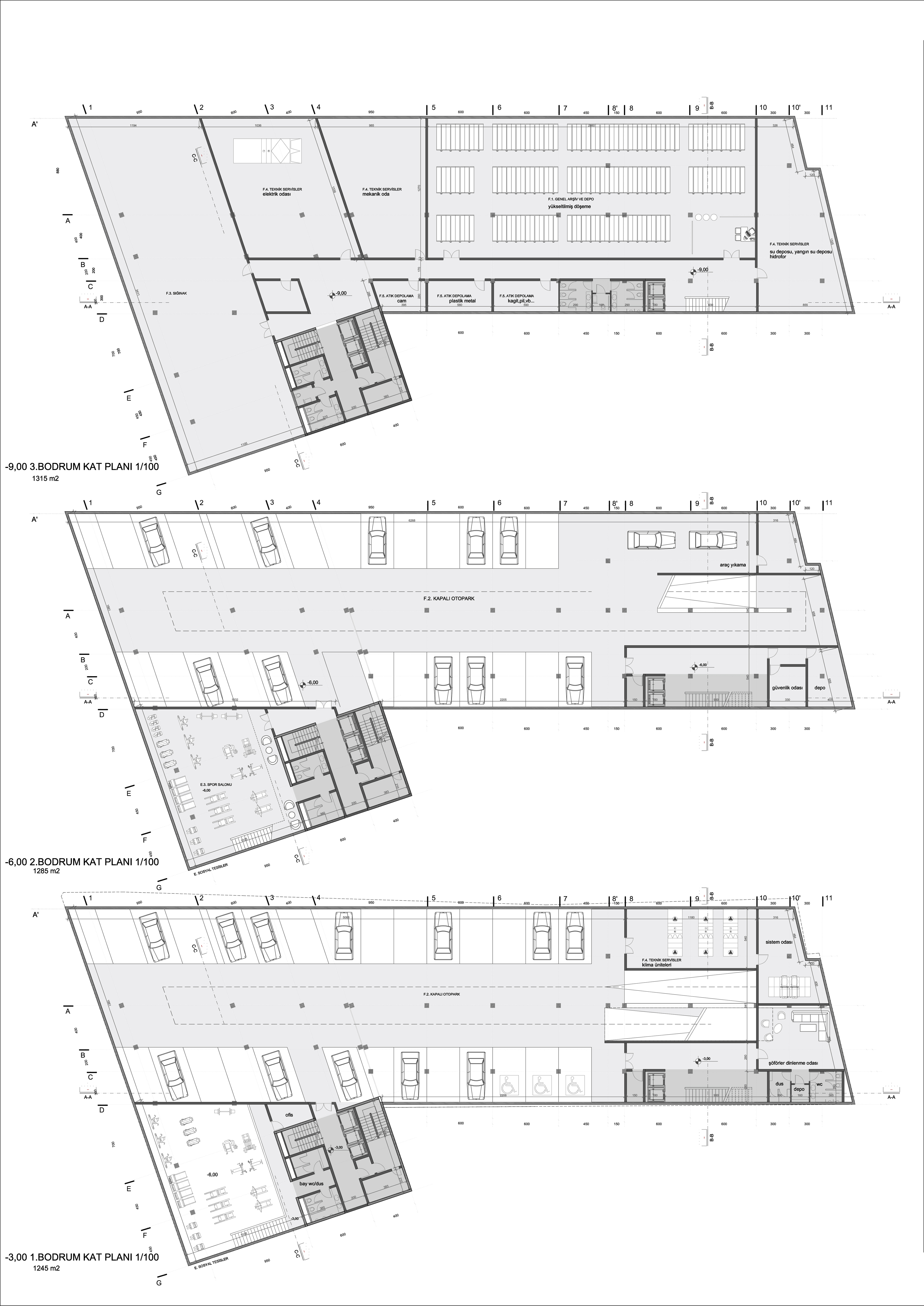
Bodrum Kat Planları
8/14
Paylaş
Resmi Orjinal Boyutunda Göster
İzmir Kalkınma Ajansı Hizmet Binası Yarışması, 2. Mansiyon
Proje Yeri: İzmir
Proje Tipi: Diğer Kamu Yapıları
Proje Tipi Grubu: 2. Mansiyon
Tasarım Ekibi: Mehmet Zafer Ünal, Recep Semizoğlu, Baran Yardımcı
Yardımcı: Hakan Gözlüklü