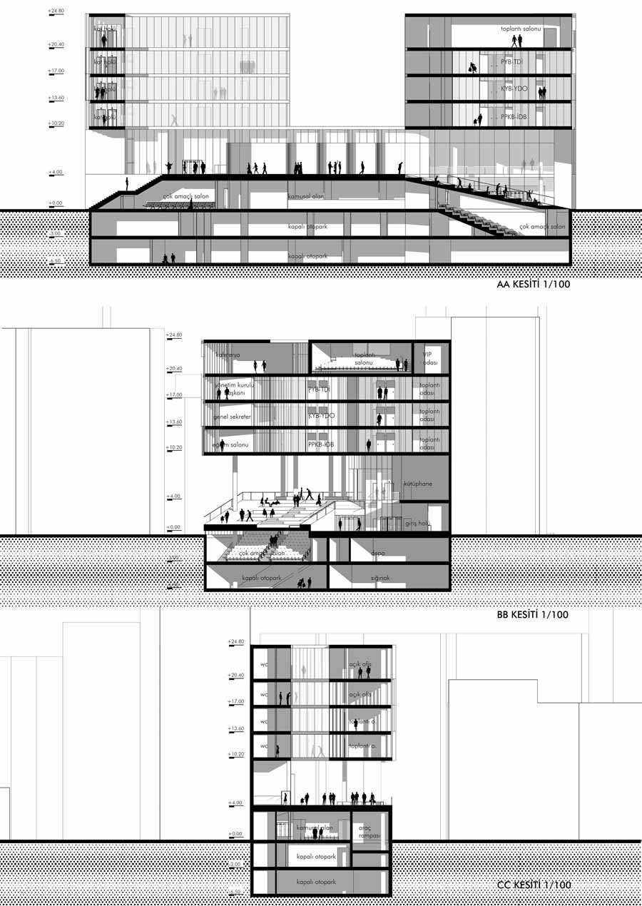
07 kesit
20/20
Paylaş
Resmi Orjinal Boyutunda Göster
Katılımcı, İzka Hizmet Binası
Proje Yeri: İzmir
Proje Ofisi: SCRA Mimarlık, FREA
Proje Tipi: Diğer Kamu Yapıları
Tasarım Ekibi: Ömer Emre Şavural, Fatih Yavuz, Seden Cinasal Avcı, Ramazan Avcı, Betül Dönmez, Yucel Sala
Danışman: Mehmet Zafer Kınacı, Bahri Türkmen, Kemal Ovacık