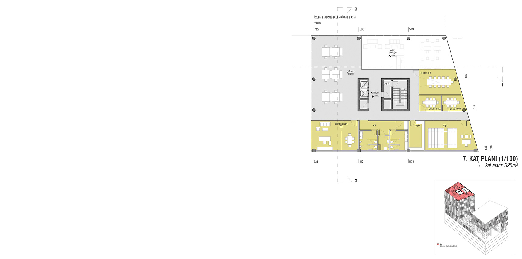
7. Kat Planı
27/34
Paylaş
Resmi Orjinal Boyutunda Göster
4. Mansiyon, İzmir Kalkınma Ajansı Hizmet Binası Yarışması
Proje Yeri: İzmir
Proje Ofisi: Motto Mimarlık
Proje Tipi: Diğer Kamu Yapıları
Proje Tipi Grubu: 4. Mansiyon
Tasarım Ekibi: Onur Özkoç, Heves Beşeli, Hakan Şanlı, Gökhan Yıldırım, Rafail Afandiyev, Duygu Tüntaş
Danışman: Ergun Tercanlı, M. İhsan Beşeli, Koray Yücesoy