7/16
Paylaş
Resmi Orjinal Boyutunda Göster
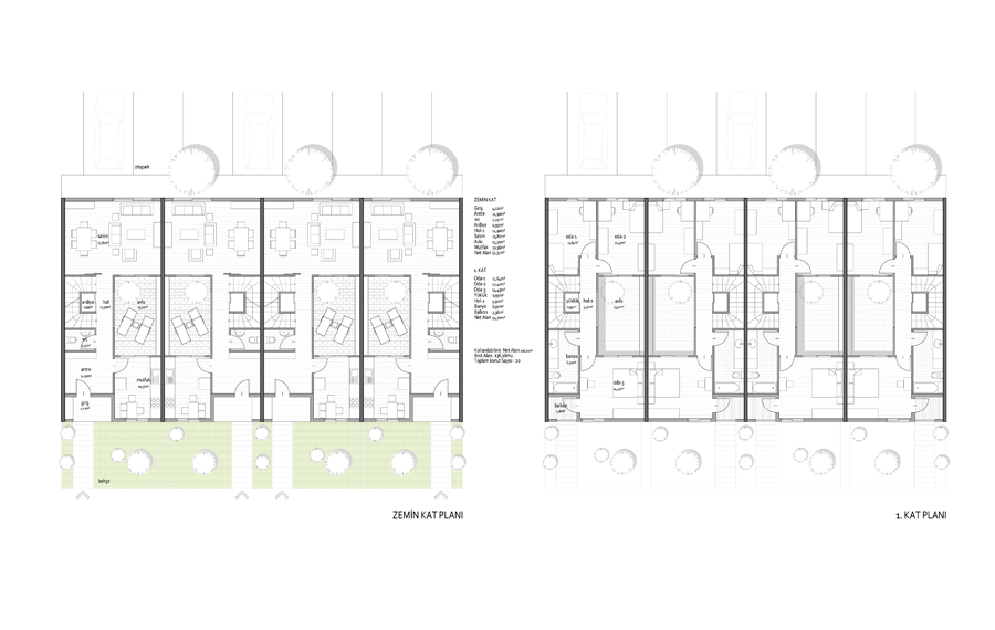
Hatay Samandağ Toplu Konut Projesi
Project Location: Samandağ, Hatay
Project Office: Yalın Mimarlık
Project Type: Housing Complex
Tasarım Ekibi: Ömer Selçuk Baz, Okan Bal, Ozan Elter, Ege Battal, Melek Kılınç, Ece Özdür
Employer: Samandağ Belediyesi
Lighting Project: Öneren Proje ve Mühendislik
Structural Project: Fonksiyon Mühendislik
Mechanical Project: Moskay Mühendislik
Project Start Date: 2012
Project End Date: 2012
Construction Start Date: 2013
Total Construction Area: 8.143 m²