3/7
Paylaş
Resmi Orjinal Boyutunda Göster
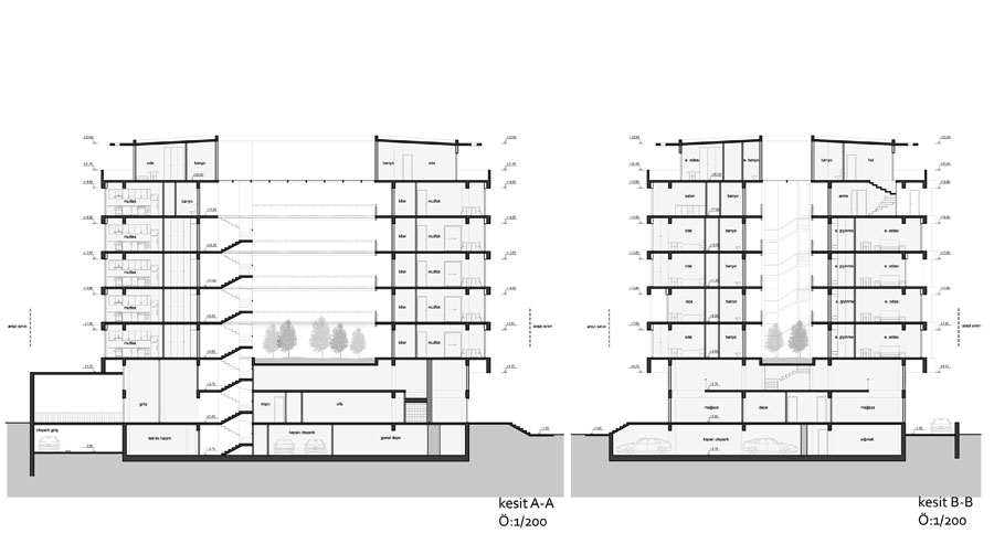
Antakya 765
Project Location: Hatay
Project Office: Yalın Mimarlık
Project Type: Housing Complex
Tasarım Ekibi: Ömer Selçuk Baz, Melek Kılınç, Ege Battal, Ozan Elter
Structural Project: Fonksiyon Mühendislik
Project End Date: 2011
Construction Start Date: 2013
Building Plot Area: 1.200m²
Total Construction Area: 5.000 m²