19/25
Paylaş
Resmi Orjinal Boyutunda Göster
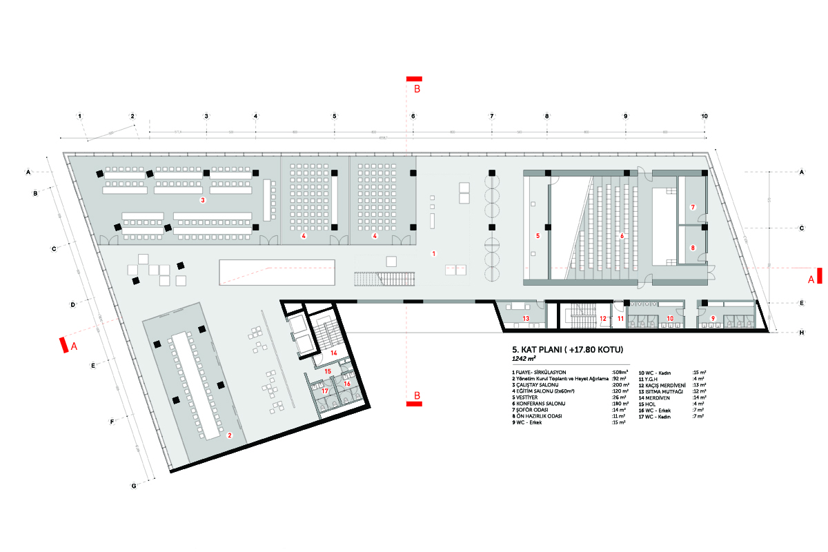
1.Mansiyon, İzmir Kalkınma Ajansı Hizmet Binası Yarışması
Project Location: İzmir
Project Type: Other Public Buildings
Proje Tipi Grubu: 1. Mansiyon
Tasarım Ekibi: Mehmet Metin Polat, Bilge Altuğ, Elif Aksayan
Yardımcı: Dilara Sezgin, Özgür Önsel, Necati Emre Öztürk, İbrahim Tolga Çelik