6
9/24
Paylaş
Resmi Orjinal Boyutunda Göster
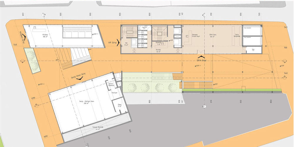
Katılımcı, İzmir Kalkınma Ajansı Hizmet Binası Mimari Proje Yarışması
Project Location: İzmir
Project Office: M artı D Mimarlık
Project Type: Other Public Buildings
Proje Tipi Grubu: Katılımcı
Tasarım Ekibi: Metin Kılıç, Dürrin Süer, Deniz Güner
Consultant: Cemal Coşak, Ekrem Evren, Namık Onmuş
Yardımcı: Utkan Emek Seçgin, Ali Can Helvacıoğlu, F. Nur Kaplan, Billur Damla Üfler