12/23
Paylaş
Resmi Orjinal Boyutunda Göster
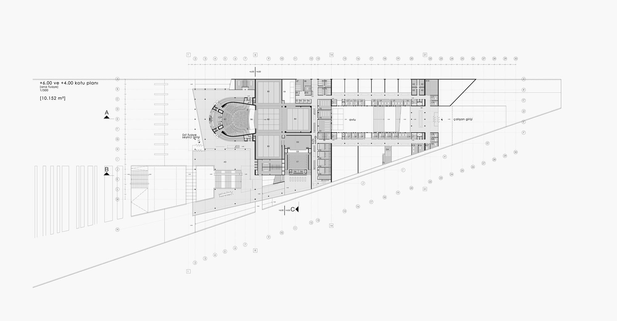
İzmir Opera Binası
Project Location: İzmir
Project Office: Teğet Mimarlık
Project Type: Opera / Ballet House
Proje Tipi Grubu: 1. Ödül
Tasarım Ekibi: Ertuğ Uçar, Mehmet Kütükçüoğlu, Mert Üçer, Onur Akın, Emiliano Bugatti, Caner Bilgin, Deniz Subaşı, Eylem Yılmaz, Nazlı Tümerdem, Gökçen Erkılıç, Elena Giugni, Pınar Sönmez, Öykü Kocaman, Yunus Emre Kara (2014)
Consultant: Anne Minors, Hanif Kara, John Risley, Paul Scott, Serhan Bucak, Serhan Çaycılar, Aygen Kancı, Uğur Seymen, Timo Tuovila, Sigal Mühendislik, Koray Güneri, Ege Zemin İnşaat, Ramazan Yıldız
Yardımcı: İrem Güçlü, Ali Can Atabey
Peyzaj Mimarlığı: Teğet Mimarlık, Öykü Kocaman
Lighting Project: Prosistem, Keman Süner, Ukon, Uygar Sakarya
Structural Project: Arçe Mühendislik, Necati Çeltikçi
Mechanical Project: Okutan Mühendislik, Mehmet Okutan
Electrical Project: Promer Mühendislik, Muharrem Akbulut
Acoustic Consultant: Robert Essert, Mezzo Studio, Mehmet Çalışkan
Fire Safety Consultant: Karina Tasarım Danışmanlık ve Eğitim Hizmetleri, Tanju Ataylar