13/23
Paylaş
Resmi Orjinal Boyutunda Göster
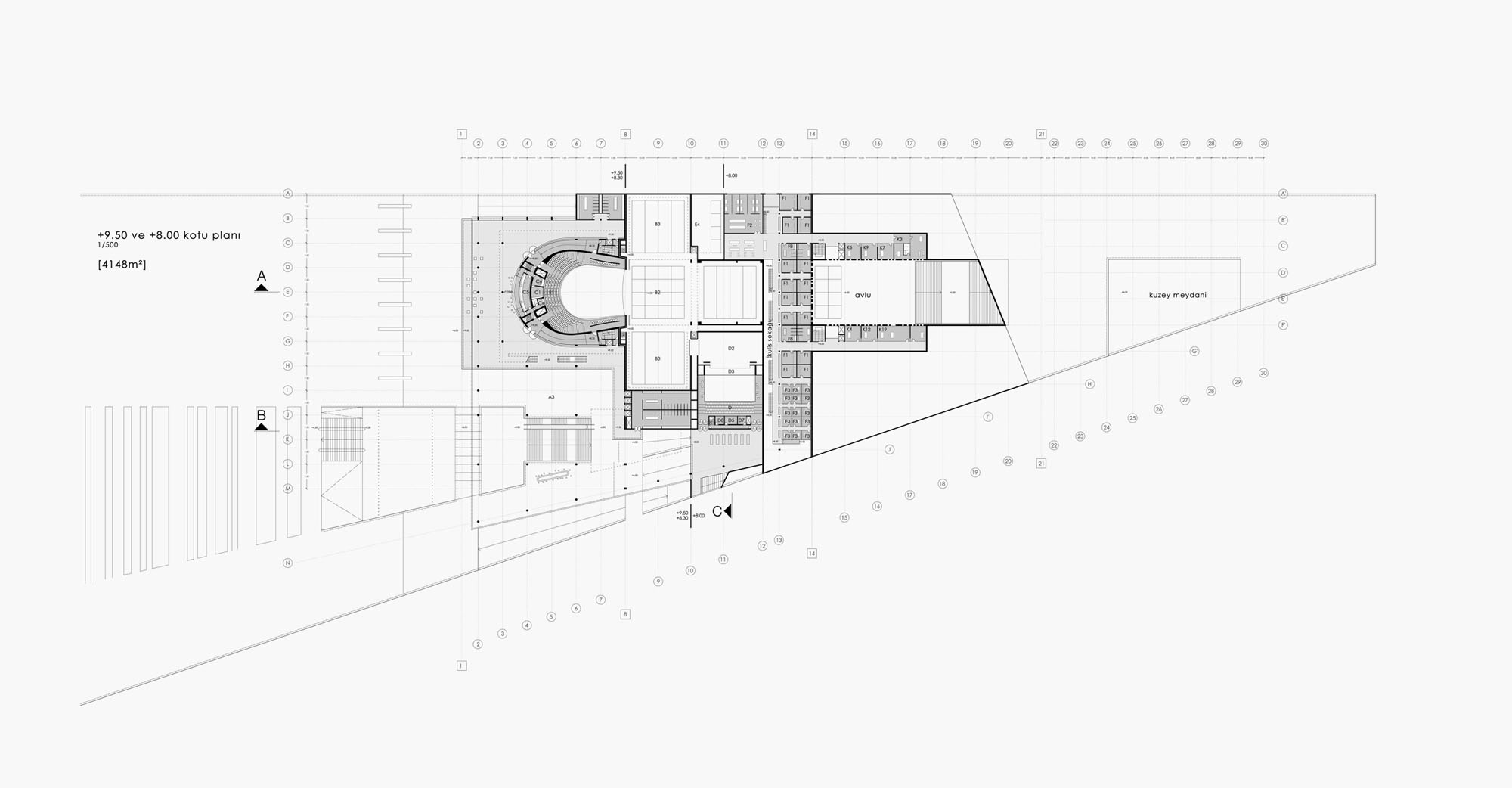
İzmir Opera Binası
Proje Yeri: İzmir
Proje Ofisi: Teğet Mimarlık
Proje Tipi: Opera / Bale Salonu
Proje Tipi Grubu: 1. Ödül
Tasarım Ekibi: Ertuğ Uçar, Mehmet Kütükçüoğlu, Mert Üçer, Onur Akın, Emiliano Bugatti, Caner Bilgin, Deniz Subaşı, Eylem Yılmaz, Nazlı Tümerdem, Gökçen Erkılıç, Elena Giugni, Pınar Sönmez, Öykü Kocaman, Yunus Emre Kara (2014)
Danışman: Anne Minors, Hanif Kara, John Risley, Paul Scott, Serhan Bucak, Serhan Çaycılar, Aygen Kancı, Uğur Seymen, Timo Tuovila, Sigal Mühendislik, Koray Güneri, Ege Zemin İnşaat, Ramazan Yıldız
Yardımcı: İrem Güçlü, Ali Can Atabey
Peyzaj Mimarlığı: Teğet Mimarlık, Öykü Kocaman
Aydınlatma Projesi: Prosistem, Keman Süner, Ukon, Uygar Sakarya
Statik Projesi: Arçe Mühendislik, Necati Çeltikçi
Mekanik Projesi: Okutan Mühendislik, Mehmet Okutan
Elektrik Projesi: Promer Mühendislik, Muharrem Akbulut
Akustik Danışmanı: Robert Essert, Mezzo Studio, Mehmet Çalışkan
Yangın Güvenlik Danışmanı: Karina Tasarım Danışmanlık ve Eğitim Hizmetleri, Tanju Ataylar