22/30
Paylaş
Resmi Orjinal Boyutunda Göster
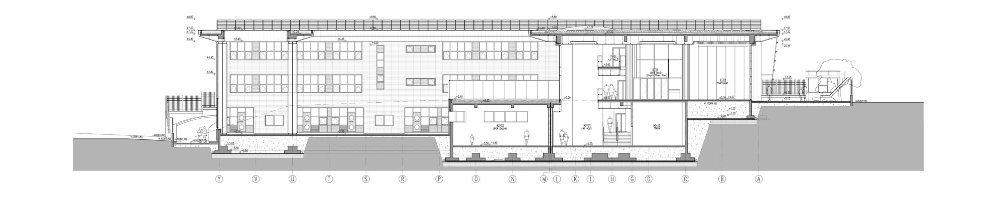
Otizmli Çocuklar Eğitim Merkezi
Project Location: Yenimahalle, Ankara
Project Office: Uz Mimarlık Atölyesi
Project Type: Other Education Buildings
Tasarım Ekibi: Mehmet Soylu, Mete Öz, Övünç Tarakçıoğlu
Employer: İller Bankası (İLBANK AŞ)
Yardımcı: Şentürk Topçuoğlu, Abdulkadir Yılmaz, Yasin Bulut
Ana Yüklenici: İller Bankası (İLBANK AŞ)
Peyzaj Mimarlığı: Murat Bektaş, 3M
Interior Architecture: Levent Tümer, Durul Onaran - Tümer Onaran İç Mimarlık
Structural Project: Fatih Altınok, Minsa İnşaat
Mechanical Project: M. İhsan Beşeli, Beşeli Mühendislik
Electrical Project: Oğuz Akbudak, Şafak Elektrik Proje
Acoustic Consultant: Duyal Karagözoğlu
Photography: Gücügür Görkay
Project Start Date: 2009
Project End Date: 2010
Construction Start Date: 2011
Construction End Date: 2013
Building Plot Area: 7.500 m2
Total Construction Area: 5.928 m²