23/30
Paylaş
Resmi Orjinal Boyutunda Göster
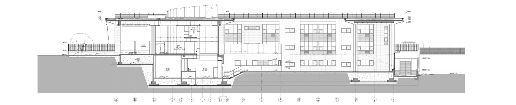
Otizmli Çocuklar Eğitim Merkezi
Proje Yeri: Yenimahalle, Ankara
Proje Ofisi: Uz Mimarlık Atölyesi
Proje Tipi: Diğer Eğitim Yapıları
Tasarım Ekibi: Mehmet Soylu, Mete Öz, Övünç Tarakçıoğlu
İşveren: İller Bankası (İLBANK AŞ)
Yardımcı: Şentürk Topçuoğlu, Abdulkadir Yılmaz, Yasin Bulut
Ana Yüklenici: İller Bankası (İLBANK AŞ)
Peyzaj Mimarlığı: Murat Bektaş, 3M
İç Mekan Projesi: Levent Tümer, Durul Onaran - Tümer Onaran İç Mimarlık
Statik Projesi: Fatih Altınok, Minsa İnşaat
Mekanik Projesi: M. İhsan Beşeli, Beşeli Mühendislik
Elektrik Projesi: Oğuz Akbudak, Şafak Elektrik Proje
Akustik Danışmanı: Duyal Karagözoğlu
Fotoğraf: Gücügür Görkay
Proje Başlangıç Yılı: 2009
Proje Bitiş Yılı: 2010
İnşaat Başlangıç Yılı: 2011
İnşaat Bitiş Yılı: 2013
Arsa Alanı: 7.500 m2
Toplam İnşaat Alanı: 5.928 m²