23/30
Paylaş
Resmi Orjinal Boyutunda Göster
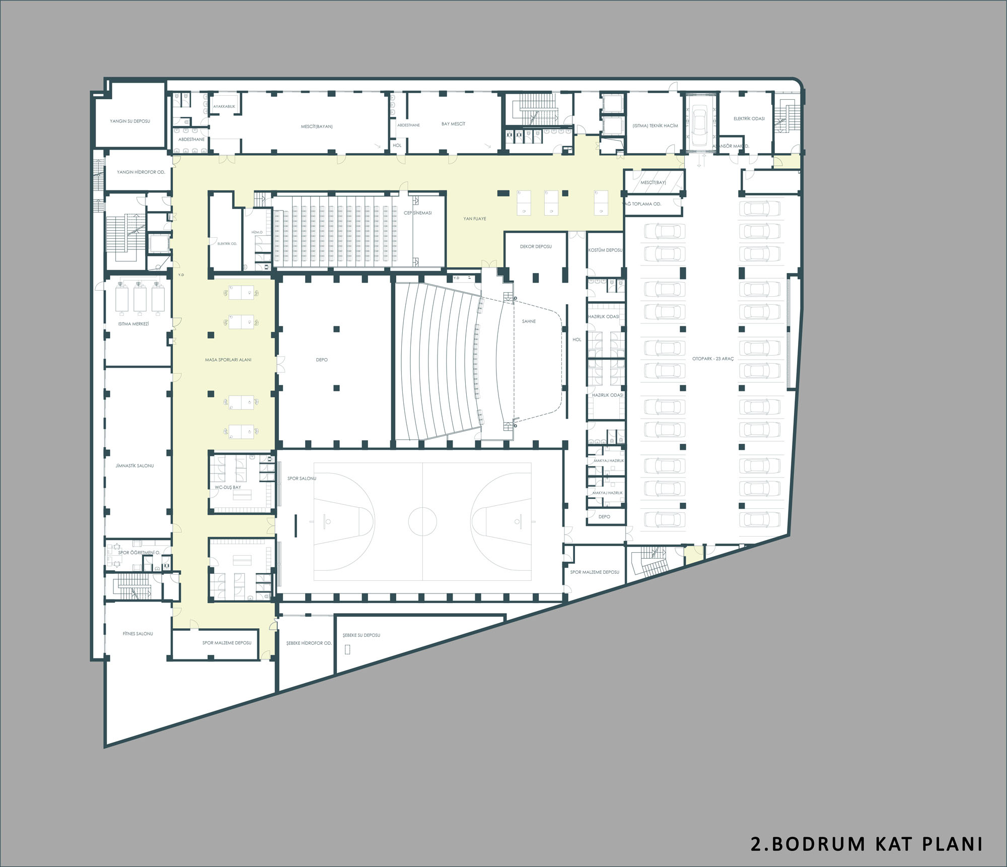
Fatih Koleji Sami Çakır Anadolu Fen Lisesi
Proje Yeri: İstanbul, Büyükçekmece
Proje Ofisi: Zambak Mimarlık
Proje Tipi: Lise / Ortaöğretim
Tasarım Ekibi: Ahmet Anıl
İşveren: İttifak Eğitim Hizmetleri Ticaret A.Ş.
Danışman: Fehmi Kızıl, Ekrem Şişman, Kadir Karakoç
Yardımcı: Nihat Saltan, Eren Uyumaz
İç Mekan Projesi: Yusuf Hacıhaliloğlu, Fatih Bayhan, Hakan Kurtuluş
Proje Yöneticisi: Zambak Mimarlık, Turan Kınacı, Yalçın Öztürk, Mehmet Hanifi Tüylüce
Fotoğraf: Alp Eren, ALTKAT Architectural Photography
Proje Başlangıç Yılı: 2011
Proje Bitiş Yılı: 2013
İnşaat Başlangıç Yılı: 2012
İnşaat Bitiş Yılı: 2013
Arsa Alanı: 7.312 m²
Toplam İnşaat Alanı: 19.886 m²