26/30
Paylaş
Resmi Orjinal Boyutunda Göster
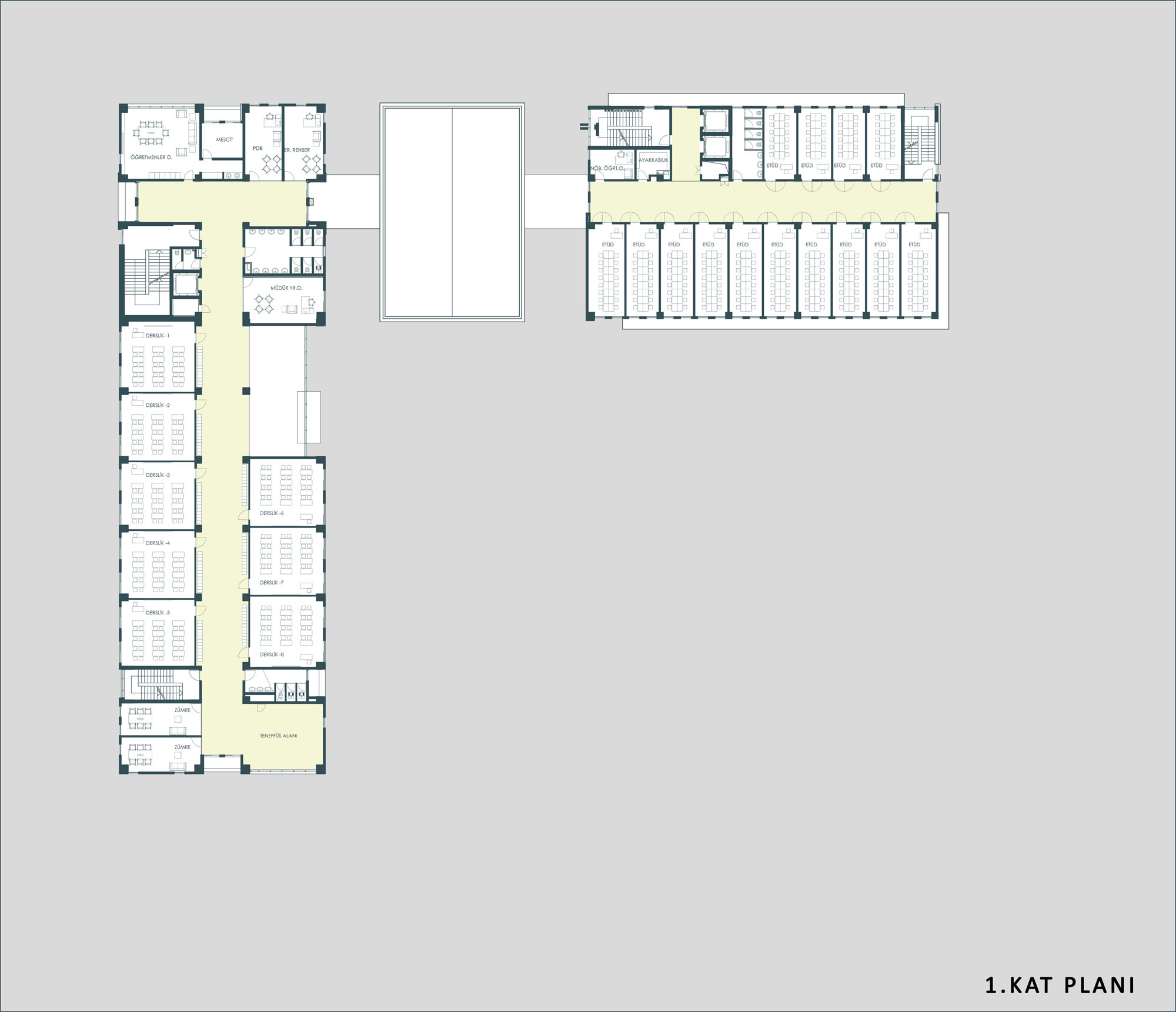
Fatih Koleji Sami Çakır Anadolu Fen Lisesi
Project Location: İstanbul, Büyükçekmece
Project Office: Zambak Mimarlık
Project Type: High School
Tasarım Ekibi: Ahmet Anıl
Employer: İttifak Eğitim Hizmetleri Ticaret A.Ş.
Consultant: Fehmi Kızıl, Ekrem Şişman, Kadir Karakoç
Yardımcı: Nihat Saltan, Eren Uyumaz
Interior Architecture: Yusuf Hacıhaliloğlu, Fatih Bayhan, Hakan Kurtuluş
Projcet Manager: Zambak Mimarlık, Turan Kınacı, Yalçın Öztürk, Mehmet Hanifi Tüylüce
Photography: Alp Eren, ALTKAT Architectural Photography
Project Start Date: 2011
Project End Date: 2013
Construction Start Date: 2012
Construction End Date: 2013
Building Plot Area: 7.312 m²
Total Construction Area: 19.886 m²