14/17
Paylaş
Resmi Orjinal Boyutunda Göster
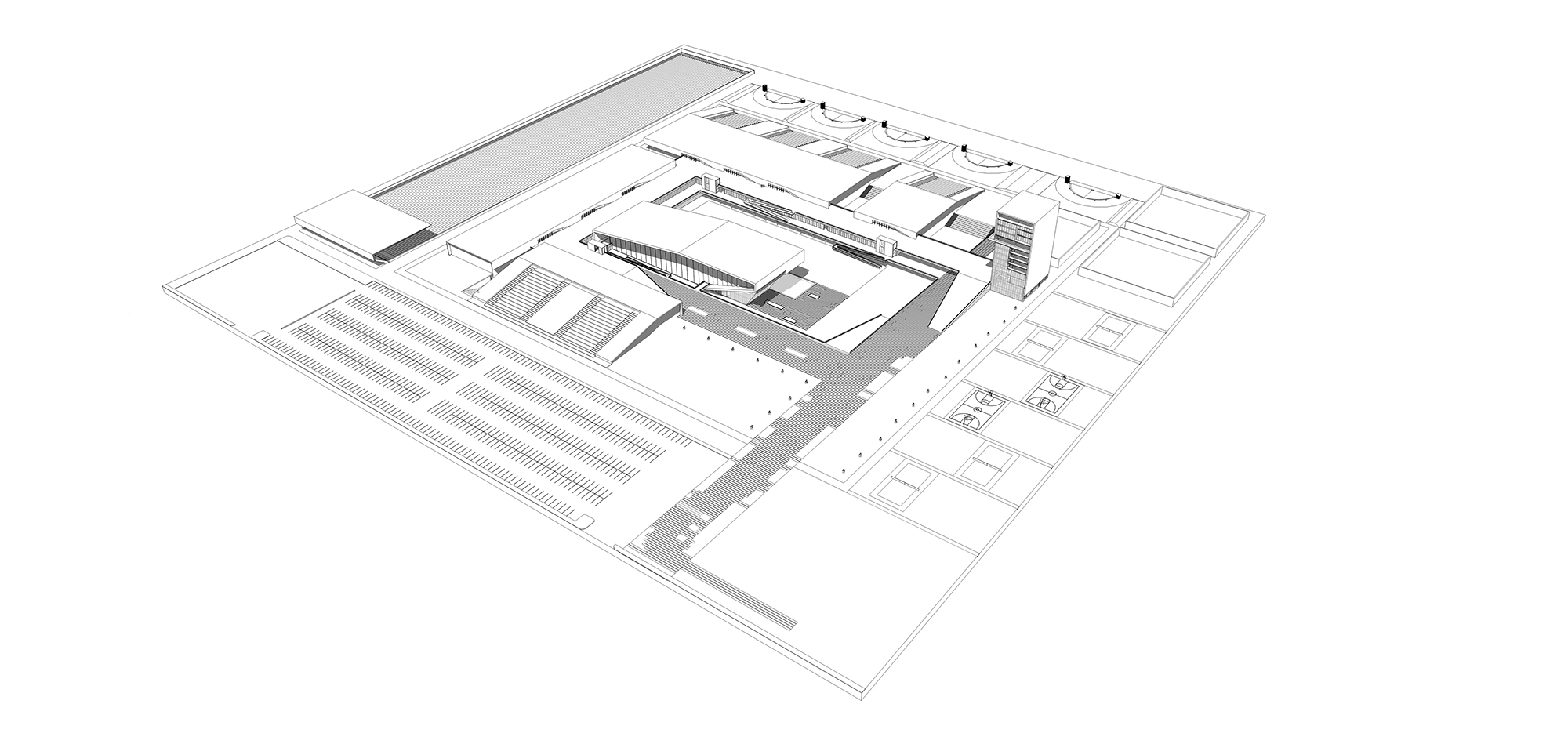
90. Yıl Başkent Poligon Kompleksi Davetli Mimari Proje Yarışması
Proje Ofisi: Motto Mimarlık
Proje Tipi: Diğer Spor Yapıları
Proje Tipi Grubu: 1. Ödül
Tasarım Ekibi: Onur Özkoç, Heves Beşeli, Duygu Tüntaş, Tamara Nazari, Hakan Şanlı