15/17
Paylaş
Resmi Orjinal Boyutunda Göster
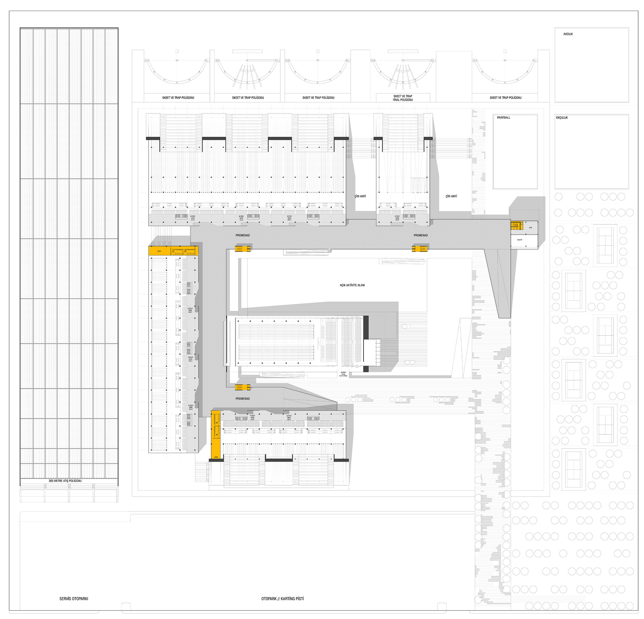
90. Yıl Başkent Poligon Kompleksi Davetli Mimari Proje Yarışması
Project Office: Motto Mimarlık
Project Type: Other Sports Buildings
Proje Tipi Grubu: 1. Ödül
Tasarım Ekibi: Onur Özkoç, Heves Beşeli, Duygu Tüntaş, Tamara Nazari, Hakan Şanlı