10/11
Paylaş
Resmi Orjinal Boyutunda Göster
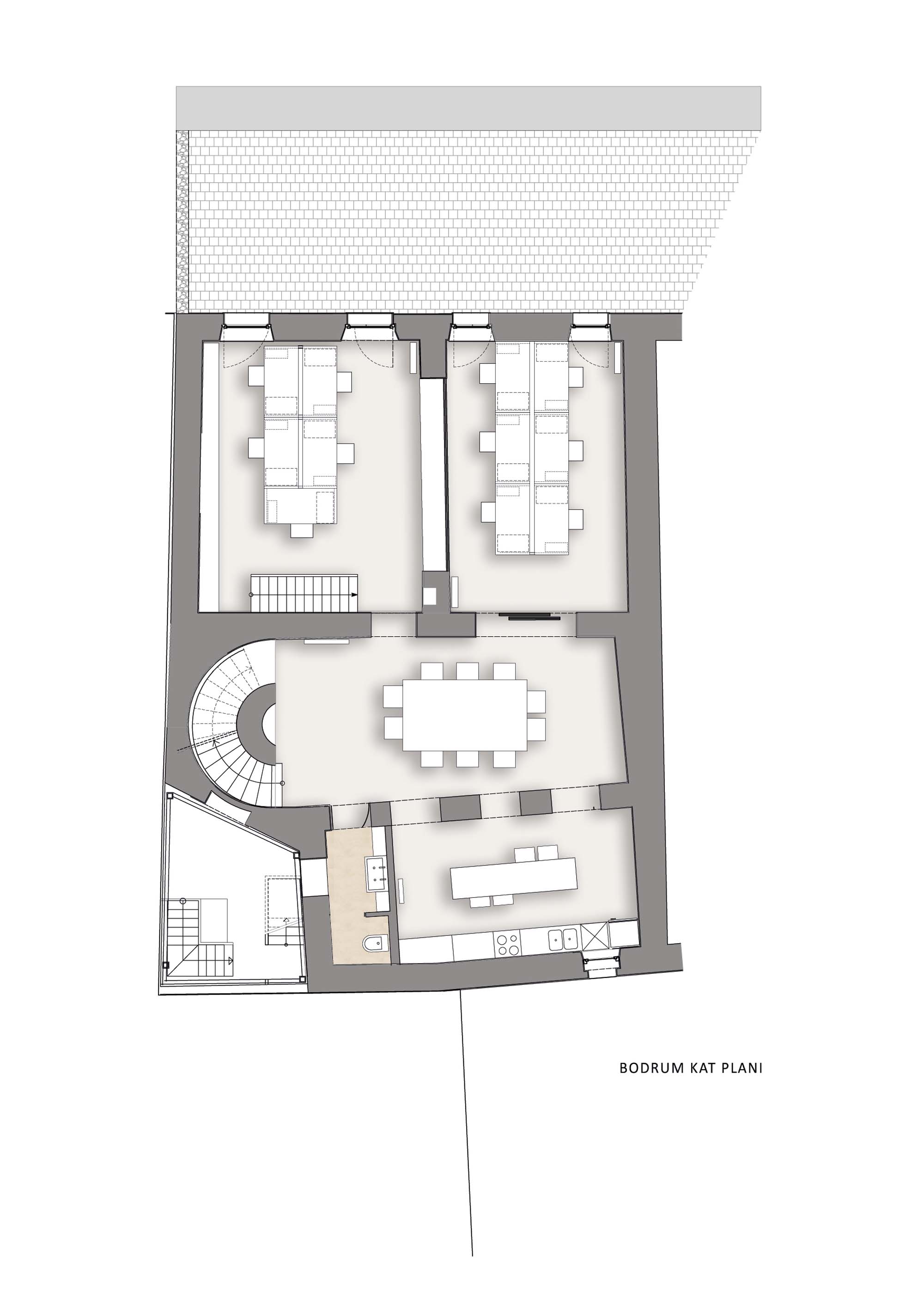
Galata Atelye70
Project Location: Beyoğlu, İstanbul
Project Office: Atelye70 Planners and Architects
Project Type: Offices
Tasarım Ekibi: Doğu Kaptan, Ekim Kaptan, Marco Lombardini, Yonca Temizkan, Murat Er
Employer: Atelye70 Planners and Architects
Yardımcı: Gabriella Colacicco
Ana Yüklenici: Atelye70 Planners and Architects
Interior Architecture: Yonca Temizkan, Doğu Kaptan
Projcet Manager: Atelye70 Planners and Architects
Mechanical Project: Levent Acar
Electrical Project: İbrahim Yavuz
Plumbing Project: Murat Durmaz
Project Start Date: 2012
Project End Date: 2012
Construction Start Date: 2013
Construction End Date: 2013
Total Construction Area: 320 m²