11/11
Paylaş
Resmi Orjinal Boyutunda Göster
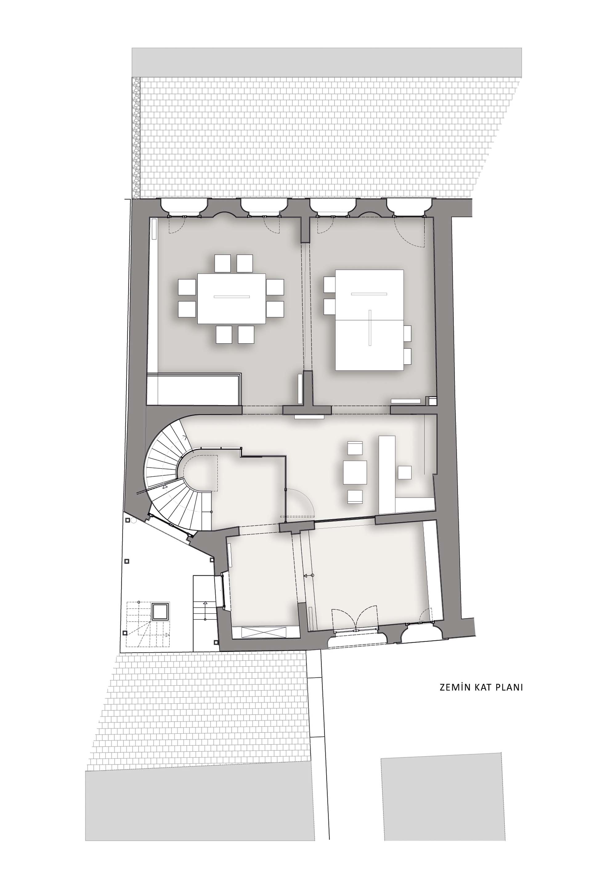
Galata Atelye70
Proje Yeri: Beyoğlu, İstanbul
Proje Ofisi: Atelye70 Planners and Architects
Proje Tipi: Ofis
Tasarım Ekibi: Doğu Kaptan, Ekim Kaptan, Marco Lombardini, Yonca Temizkan, Murat Er
İşveren: Atelye70 Planners and Architects
Yardımcı: Gabriella Colacicco
Ana Yüklenici: Atelye70 Planners and Architects
İç Mekan Projesi: Yonca Temizkan, Doğu Kaptan
Proje Yöneticisi: Atelye70 Planners and Architects
Mekanik Projesi: Levent Acar
Elektrik Projesi: İbrahim Yavuz
Tesisat Projesi: Murat Durmaz
Proje Başlangıç Yılı: 2012
Proje Bitiş Yılı: 2012
İnşaat Başlangıç Yılı: 2013
İnşaat Bitiş Yılı: 2013
Toplam İnşaat Alanı: 320 m²