12/16
Paylaş
Resmi Orjinal Boyutunda Göster
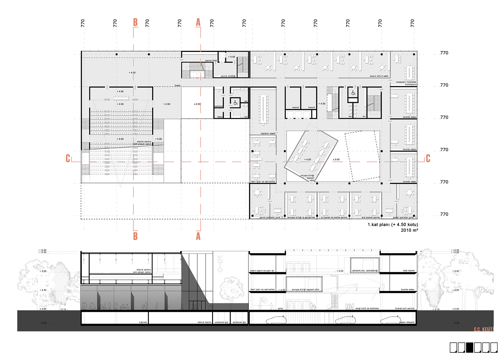
Kayseri Ticaret Odası Hizmet Binası Mimari Proje Yarışması
Proje Yeri: Kayseri
Proje Ofisi: A2 Tasarım
Proje Tipi: Ofis
Proje Tipi Grubu: Eşdeğer Ödül
Tasarım Ekibi: Aydın Avunduk, Arman Yaşa, Özgür Dağlar