14/16
Paylaş
Resmi Orjinal Boyutunda Göster
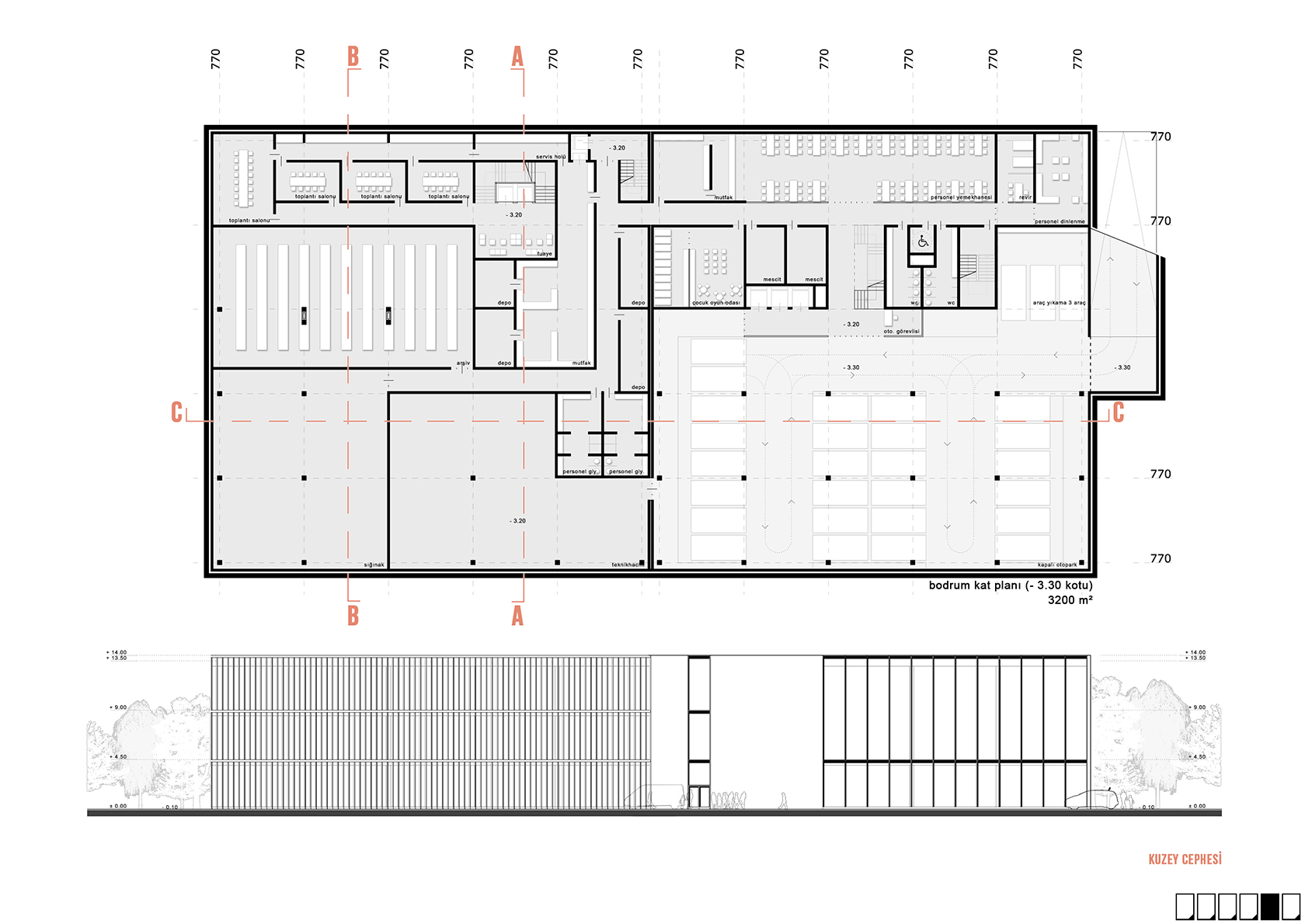
Kayseri Ticaret Odası Hizmet Binası Mimari Proje Yarışması
Project Location: Kayseri
Project Office: A2 Tasarım
Project Type: Offices
Proje Tipi Grubu: Eşdeğer Ödül
Tasarım Ekibi: Aydın Avunduk, Arman Yaşa, Özgür Dağlar